Vente Maison 13590, Meyreuil france 920 000 €
Descriptif du bien
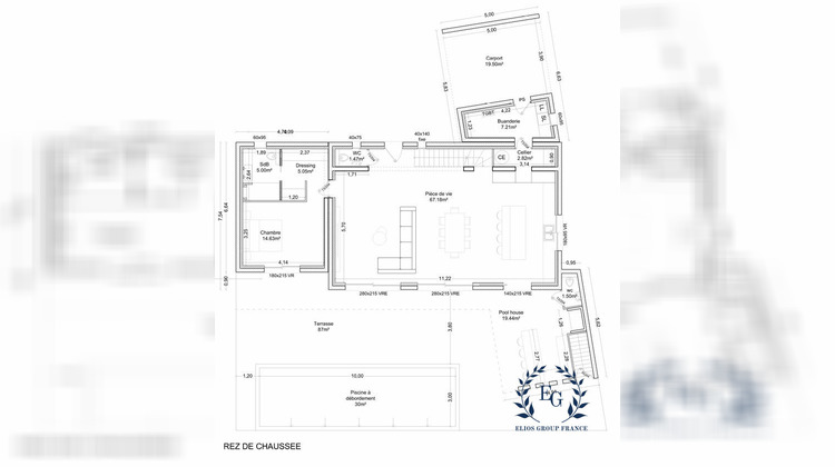
Sur la commune très prisée de Meyreuil, à proximité immédiate d'Aix-en-Provence, découvrez ce magnifique projet de villa contemporaine implanté sur un terrain de 781 m², dans un environnement calme et résidentiel.
? Le projet
Cette villa aux prestations haut de gamme développera une surface habitable de 175 m², pensée pour offrir confort, intimité et volumes généreux.
Superbe pièce de vie de 67 m², lumineuse, avec de larges baies vitrées
4 chambres d'environ 14 m² chacune
Toutes disposent de leur salle d'eau privative avec WC
2 chambres avec dressing indépendant
Organisation idéale pour une vie de famille ou réception d'invités
Cellier, buanderie, rangements optimisés
Carport et stationnements privatifs
Grand balcon de 70m² avec garde au corps en verre
? Extérieurs:Grande terrasse de 87 m²
Piscine à débordement de 30 m²
Pool house de 19 m² avec WC
Terrain plat, bien exposé, parfaitement intégré au projet
? EmplacementCommune recherchée de Meyreuil
Proximité immédiate d'Aix-en-Provence
Accès rapide aux axes routiers
Cadre résidentiel et environnement privilégié
? Les + du projetArchitecture contemporaine élégante
Prestations de standing
Projet clé en main (terrain + construction)
Fonctionnement idéal pour résidence principale ou projet patrimonial
Projet personnalisable selon vos besoins
Le permis est obtenu et purgé. Possibilité de rajouter un sous sol d'environ 100m² pour garçonnière, salle de sport, cave a vin, cinéma ect ...
? Dossier complet, plans et informations sur demande
? Disponible pour étude du projet et accompagnement personnalisé.
Honoraires à la charge du vendeur. Non soumis au DPE. Les informations sur les risques auxquels ce bien est exposé sont disponibles sur le site Géorisques : georisques.gouv.fr.
Votre conseiller ELIOS GROUP IMMOBILIER : Fabien CELIK
Agent commercial (Entreprise individuelle)
RSAC 920 337 086.
Les informations sur les risques auxquels ce bien est exposé sont disponibles sur le site Géorisques : www.georisques.gouv.fr
- Type de bien : Maison
- Surface : 175 m²
- Localisation : France - provence-alpes-cote-d-azur - Bouche-du-Rhone
- Ville : Meyreuil
- Code postal : 13590
- Disponible le 21/01/2026
- Annonce créée le 06/02/2026


