Vente Maison 77730, MERY-SUR-MARNE france 390 000 €
Descriptif du bien
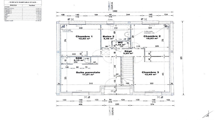
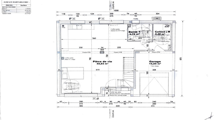
Cette maison contemporaine de 120 m² en construction allie fonctionnalité et confort. Au rez-de-chaussée, un vaste séjour lumineux de 44m² s'ouvre sur une cuisine moderne, parfaite pour recevoir. Vous trouverez également deux salles de bains dont une au rez-de-chaussée et l'autre a l'etage, un garage spacieux et un cellier pratique, idéal pour le rangement. A l'étage, la maison offre quatre chambres accueillantes, dont une suite parentale, offrant intimité et confort avec sa salle de bains privative. Chaque espace a été conçu pour maximiser la lumière naturelle et le bien-être des occupants. Les finitions de qualité et les aménagements réfléchis garantissent une vie agréable et conviviale.
- Type de bien : Maison
- Surface : 120 m²
- Localisation : France - ile-de-france - Seine et Marne
- Ville : MERY-SUR-MARNE
- Code postal : 77730
- Annonce créée le 24/12/2024

