Vente Maison 84380, Mazan france 380 000 €
Descriptif du bien
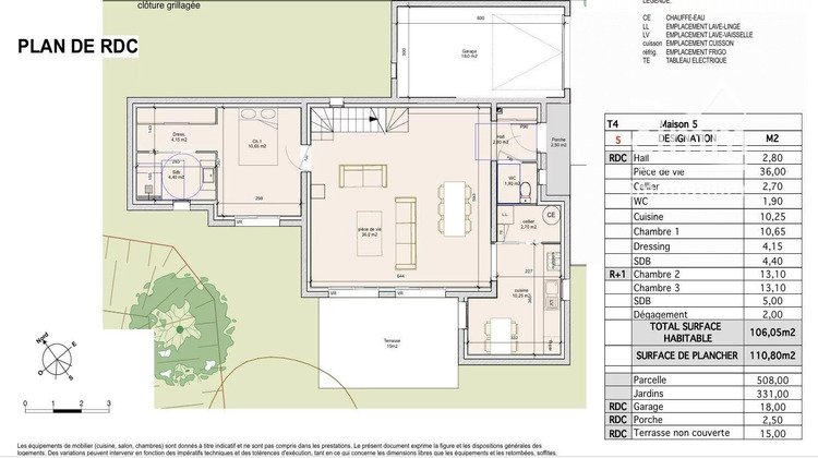
MAISON NEUVE VENTE EN VEFA 106,50 m²
NON MITOYENNE PARCELLE 508 m² CLÔTURÉE
LIVRAISON FIN 2026
Découvrez cette future maison individuelle en Vente en l'État Futur d'Achèvement (VEFA), un mode d'acquisition qui vous permet d'acheter un bien neuf sur plan, tout en bénéficiant de garanties constructeur et de frais de notaire réduits.
Sur une parcelle de 508 m², découvrez cette maison neuve conçue pour offrir confort, fonctionnalité et modernité. Son garage de 18 m² ainsi que sa terrasse de 15 m² permettent de profiter pleinement des extérieurs en toute tranquillité. Le hall d'entrée avec placard accueille vos visiteurs avant de vous mener vers une pièce de vie lumineuse de 36 m². Cet espace comprend un séjour spacieux et une cuisine indépendante, offrant une organisation pratique et agréable du quotidien. Un cellier attenant vient compléter l'agencement, idéal pour le rangement et l'optimisation des espaces. WC indépendant.
Au rez-de-chaussée, vous bénéficierez également d'une grande suite parentale, offrant un espace privé confortable et fonctionnel.
À l'étage, l'espace nuit se poursuit avec :
Deux chambres,
Une salle d'eau parfaitement agencée pour accueillir la famille ou les invités.
Cette maison représente une belle opportunité pour ceux qui recherchent un bien neuf, confortable et bien pensé, dans un environnement agréable.
Honoraires à la charge du vendeur. Non soumis au DPE. Les informations sur les risques auxquels ce bien est exposé sont disponibles sur le site Géorisques : georisques.gouv.fr.
Votre conseiller Cimm immobilier Mazan : Laetitia DELMAS
Agent commercial (Entreprise individuelle)
RSAC Avignon 517 876 215
- Type de bien : Maison
- Surface : 106 m²
- Localisation : France - provence-alpes-cote-d-azur - Vaucluse
- Ville : Mazan
- Code postal : 84380
- Disponible le 19/03/2026
- Annonce créée le 03/04/2026



