Vente Maison 33650, Martillac france 199 000 €
Descriptif du bien
Iad France - Daisy Bernasconi (06 15 04 52 90) vous propose : Maison neuve 3 pièces en duplex avec jardin à vendre - Martillac (33650) - À 15 min de Bordeaux
Martillac Centre Bourg, au sein d'une résidence sécurisée et intimiste de 12 maisons, offrant calme, nature et qualité de vie.
Vous profitez d'une proximité immédiate des commerces, écoles et services accessibles à pied, idéale pour une résidence principale.
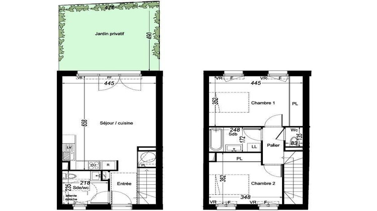
DESCRIPTIF DU BIEN
* Au rez-de-chaussée : Entrée avec rangements, séjour lumineux avec cuisine ouverte, WC avec attente douche pour une éventuelle salle d'eau supplémentaire.
* À l'étage : 2 chambres avec placards, une salle de bain équipée, WC séparé.
* En extérieur, vous profiterez d'un jardin privatif de 22 m² environ, parfait pour profiter des beaux jours en toute tranquillité et d'une place de parking privative.
LES ATOUTS DE CETTE MAISON NEUVE A MARTILLAC
* Maison neuve conforme RE2020
* Garantie constructeur
* Frais de notaire réduits
* Excellente performance énergétique
* Environnement résidentiel recherché
CONDITIONS D'ACQUISITION- Bail Réel Solidaire (BRS)
Cette maison neuve à vendre à Martillac est proposée en Bail Réel Solidaire (BRS) :
* Prix d'achat réduit
* TVA réduite
* Accès réservé aux ménages sous plafonds de ressources
* Primo-accédants éligibles au Prêt à Taux Zéro (PTZ)
* Garantie de rachat
Un achat responsable et sécurisé, idéal pour devenir propriétaire de sa résidence principale dans le secteur sud de Bordeaux.
Vous avez un projet d'achat dans l'immobilier neuf à Martillac ou autour de Bordeaux !
Contactez-moi dès maintenant pour plus d'informations ou pour vérifier votre éligibilité au BRS.
Honoraires d'agence à la charge du vendeur. Bien non soumis au DPE. Les informations sur les risques auxquels ce bien est exposé sont disponibles sur le site Géorisques : www.georisques.gouv.fr. La présente annonce immobilière a été rédigée sous la responsabilité éditoriale de Mme Daisy Bernasconi EI (ID 47364), mandataire indépendant en immobilier (sans détention de fonds), agent commercial de la SAS I@D France immatriculé au RSAC de BORDEAUX sous le numéro 885193003, titulaire de la carte de démarchage immobilier pour le compte de la société I@D France SAS.
Retrouvez tous nos biens sur notre site internet. www.iadfrance.fr.
Informations LOI ALUR :
Honoraires charge vendeur. (gedeon_6727_32481718)
- Type de bien : Maison
- Surface : 71 m²
- Localisation : France - Nouvelle-Aquitaine - Gironde
- Ville : Martillac
- Code postal : 33650
- Annonce créée le 22/01/2026



