Vente Maison 13010, Marseille france 449 000 €
Descriptif du bien
Située dans le quartier recherché de Saint-Tronc, rue François Mauriac :
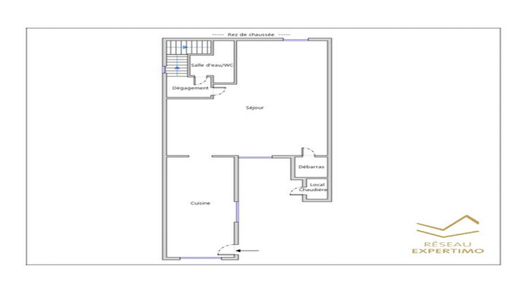
Maison familiale de 141 m2 au total (dont 115 m2 habitables), édifiée sur une parcelle d'environ 300 m2 avec jardin, à rénover entièrement pour révéler tout son potentiel.
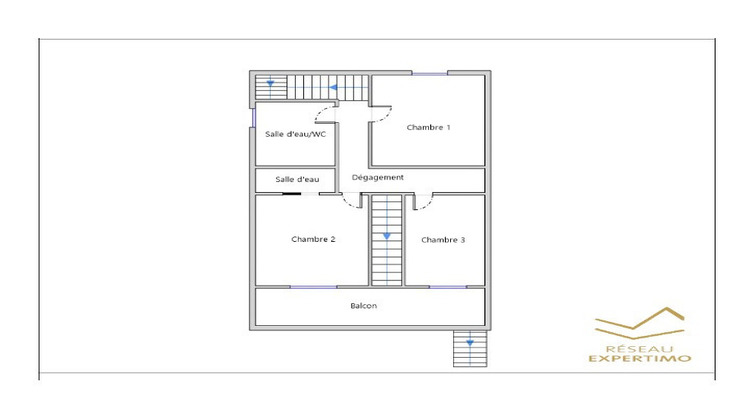
La maison s'élève sur 3 niveaux : - Un rez-de-chaussée avec espace de vie, cuisine séparé, salle d'eau avec wc, garage et jardin, - Un étage composé de 3 chambres, 2 salles d'eau avec wc et un balcon, - Les combles ont été aménagés en deux pièces supplémentaires avec salle d'eau et WC, pouvant faire office de chambres, de bureau ou de salle de jeux...
Un jardin privatif et un garage complètent ce bien. Des travaux sont à prévoir. Photos disponibles sur demande.
Disponible immédiatement.
Cette annonce vous est proposée par DJELLOULI Anissa - EI - NoRSAC: 850906694, Enregistré à Chambre de commerce et de l'industrie de MARSEILLE
Les informations sur les risques auxquels ce bien est exposé sont disponibles sur le site Géorisques : www.georisques.gouv.fr - Annonce rédigée et publiée par un Agent Mandataire -
- Type de bien : Maison
- DPE : C - 91 à 150 kWh/².an
- GES : D - 21 à 35 kg eq CO2/².an
- Surface : 115 m²
- Localisation : France - provence-alpes-cote-d-azur - Bouche-du-Rhone
- Ville : Marseille
- Code postal : 13010
- Annonce créée le 16/07/2025





