Vente Maison 30320, MARGUERITTES france 299 000 €
1 / 4
Descriptif du bien
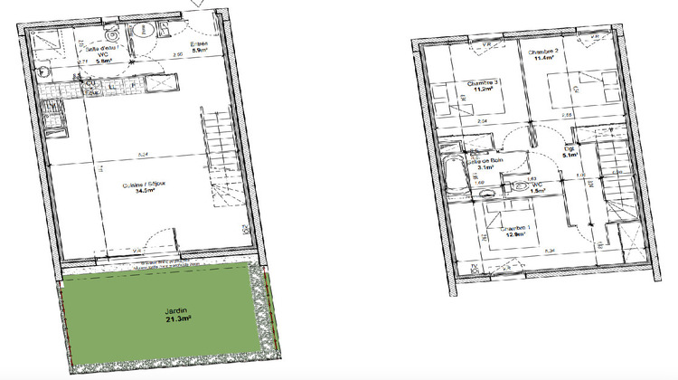
Fiche Id-CAB180922 : Marguerittes, Maison d'environ 91 m2 comprenant 4 piece(s) dont 3 chambre(s) - Construction 2023 - Equipements annexes : parking - - Plus d'informations disponibles sur demande... - Mentions légales : Proposé à la vente à 299000 Euros (honoraires à la charge du vendeur) - DPE réalisé le : 00/00/0000 - Affaire suivie par Mr Adrien CLAUZEL (Agent immobilier - Responsable) - Reseau Immo-Diffusion Montpellier - Pour plus d'informations, contactez notre secrétariat au 09 74 53 13 81 (Appel gratuit ou prix d'une communication locale)



