Vente Maison 85320, Mareuil-sur-Lay-Dissais france 264 750 €
Descriptif du bien
EN VENTE EN EXCLUSIVITE CHEZ PHILIPPE BROCHARD IMMOBILIER
Située à seulement 5 minutes de Mareuil sur Lay, cette propriété allie le calme de la campagne à la proximité des services.
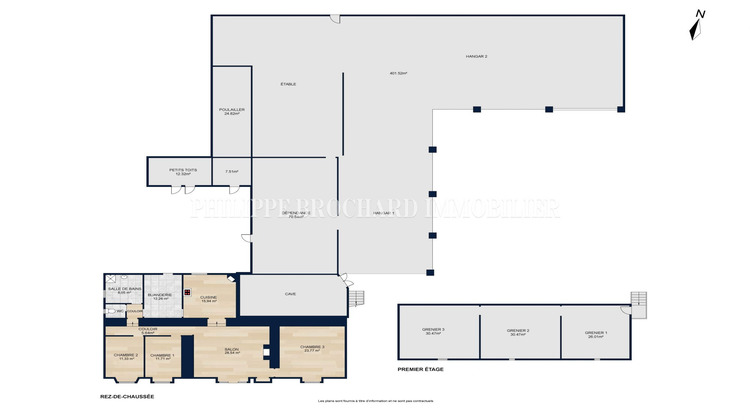
Vous bénéficierez d'une maison à rénover de 119 m² comprenant un grand salon lumineux de 28,54 m² avec cheminée, 3 chambres dont une très grande de 23,77 m², et une cuisine fonctionnelle avec cheminée, prolongée par une buanderie.
Aménagez votre future terrasse à l'arrière de la cuisine, exposée à l'Ouest, sans vis à vis et donnant sur des charmants petits toits en pierres !
Avec 85 m² de greniers aménageables, vous aurez la possibilité de créer des espaces supplémentaires selon vos envies.
Consultez le plan, il y a un énorme potentiel !
Vous disposerez également d'une grande salle de bains de 8,05 m² à revoir avec douche, lavabo, bidet. WC séparés.
A l'extérieur, vous profiterez d'un immense hangar semi ouvert, pratique pour le stockage, le bricolage ou pour votre camping-car, ainsi qu'une dépendance en pierres, un poulailler et une belle cave.
La maison est vendue avec 4 hectares de terres attenantes et sera idéale pour des activités extérieures, des chevaux ou autres animaux (actuellement il y a plusieurs prés dotés de clôtures, une étable et un grand poulailler). Si vous n'en avez pas l'utilité, louez simplement ces terres !
Rare sur le marché !
Pour plus d'informations ou pour organiser une visite, contactez Marie Brochard au 06.40.91.89.90
Plan et visite virtuelle disponibles.
Audit énergétique disponible sur demande.
Honoraires inclus de 5.9% TTC à la charge de l'acquéreur. Prix hors honoraires 250 000 . Classe énergie F, Classe climat C Logement à consommation énergétique excessive. Montant estimé des dépenses annuelles d'énergie pour un usage standard : entre 2430.00 et 3330.00 sur les années 2021, 2022 et 2023 (abonnements compris). Les informations sur les risques auxquels ce bien est exposé sont disponibles sur le site Géorisques : georisques.gouv.fr.
AC 85012022000000339
- Type de bien : Maison
- DPE : F - 331 à 450 kWh/².an
- GES : C - 11 à 20 kg eq CO2/².an
- Surface : 119 m²
- Localisation : France - pays-de-la-loire - Vendée
- Ville : Mareuil-sur-Lay-Dissais
- Code postal : 85320
- Annonce créée le 19/12/2025





