Vente Maison 17320, Marennes france 239 500 €
Descriptif du bien
Iad France - Emmanuel Grenon vous propose : Charmante Maison Traditionnelle - 3 Chambres - Jardin Paysager - Terrasse - Parking - Garage
Découvrez cette maison traditionnelle de 100 m² située à Marennes, offrant un cadre de vie paisible et chaleureux. Parfaitement entretenue, cette propriété saura vous séduire par son charme intemporel et son excellent état général.
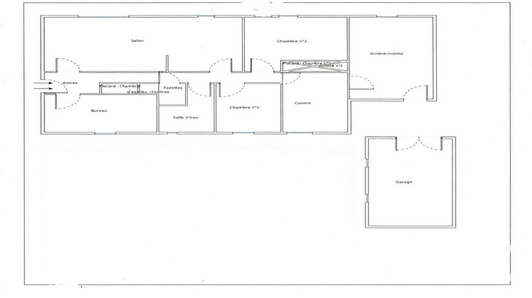
L'espace de vie se compose d'une entrée, de 3 chambres, d'une salle d'eau, d'un wc indépendant, d'une cuisine fonctionnelle, un spacieux cellier de 15 m² et d'une salle à manger lumineuse, ainsi que de nombreux rangements. Composé que de murs en cloisons à l'intérieur et charpente métallique.
Cette maison offre un confort optimal à ses habitants. Elle bénéficie également d'une terrasse ensoleillée, idéale pour profiter des beaux jours en extérieur.
L'environnement extérieur est tout aussi agréable avec un jardin paysager de 998 m², offrant un espace verdoyant et calme pour se détendre en toute tranquillité. Un parking privatif est également disponible pour stationner facilement vos véhicules et d'un garage de 26 m².
Les équipements de confort tels que la fibre optique, la climatisation, l'aération mécanique, et l'assainissement collectif contribuent à rendre votre quotidien plus agréable.
Les expositions Est et Ouest de la maison permettent de profiter de la lumière naturelle tout au long de la journée, créant ainsi une atmosphère lumineuse et accueillante.
Cette maison, de plain-pied, est idéalement conçue pour offrir une vie pratique et fonctionnelle, sans travaux à prévoir. Elle est le parfait cocon familial pour créer de beaux souvenirs et s'épanouir dans un environnement serein.
Ne manquez pas l'opportunité de visiter cette charmante maison traditionnelle à Marennes. Un véritable coup de cOEur à découvrir sans plus attendre.
Possibilité d'avoir une projection d'aménagement intérieur extérieur et d'un plan de la maison de visuels non contractuels.
Honoraires d'agence à la charge du vendeur.
Information d'affichage énergétique sur ce bien : classe ENERGIE D indice 237 et classe CLIMAT B indice 9. Les informations sur les risques auxquels ce bien est exposé, y compris l'obligation légale de débroussaillement, sont disponibles sur le site Géorisques : http://www.georisques.gouv.fr.
La présente annonce immobilière a été rédigée sous la responsabilité éditoriale de M Emmanuel Grenon mandataire indépendant en immobilier (sans détention de fonds), agent commercial de la SAS I@D France immatriculé au RSAC de SAINTES sous le numéro 878096957, titulaire de la carte de démarchage immobilier pour le compte de la société I@D France SAS.Informations LOI ALUR : Honoraires charge vendeur. (gedeon_6727_32390894)
- Type de bien : Maison
- DPE : D - 151 à 230 kWh/².an
- GES : B - 6 à 10 kg eq CO2/².an
- Surface : 96 m²
- Localisation : France - Nouvelle-Aquitaine - Charente Maritime
- Ville : Marennes
- Code postal : 17320
- Annonce créée le 16/04/2026





