Vente Maison 50300, MARCEY-LES-GREVES france 227 000 €
Descriptif du bien
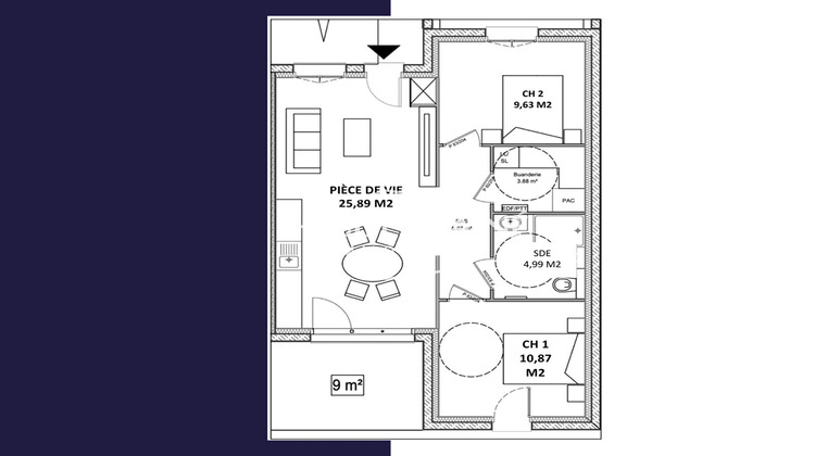
L'Agence HEUDES-LAINÉ IMMOBILIER a le plaisir de vous présenter un tout nouveau village séniors, idéalement situé au coeur du bourg de MARCEY-LES-GRÈVES, à deux pas des commerces et commodités (maison de santé, pharmacie, boulangerie, etc.). Ce projet propose 32 maisons individuelles de plain-pied, du T2 au T3, spécialement conçues pour être accessibles aux personnes à mobilité réduite. Le tout est articulé autour d'une maison de convivialité et de jardins paysagers ouverts aux résidents, pour favoriser le lien social et le bien-être au quotidien. Présence d'un régisseur sur place, garant de la bonne gestion du site et du confort des résidents. Exemple de bien proposé : Maison T3 - Salon-séjour avec cuisine ouverte, - Deux chambres, - Salle d'eau avec WC, - Buanderie. - Place de stationnement en enrobé, - Terrasse et jardin privatifs. Que vous souhaitiez acheter pour y vivre, louer ou investir dans un bien sécurisé et porteur de sens, ce village offre une opportunité rare dans un cadre serein et pratique. Contactez-nous dès aujourd'hui pour plus d'informations ou organiser une visite au 02.33.58.01.07. Les informations sur les risques auxquels ce bien est exposé sont disponibles sur le site Géorisques : www. georisques.gouv.fr






