Vente Maison 84570, Malemort-du-Comtat france 380 000 €
Descriptif du bien
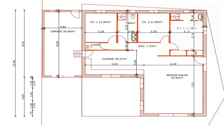
Villa neuve de 120 m² Livraison prévue en juillet 2026 Dans un environnement agréable et paisible, découvrez cette belle villa de 120 m² de surface de plancher + une grande mezzanine , implantée sur une parcelle de 607 m². Pensée pour offrir confort et fonctionnalité, elle séduira par ses volumes généreux et sa luminosité naturelle. Des prestations modernes et bien agencées : Grande pièce de vie : Un vaste espace lumineux intégrant séjour et cuisine ouverte, idéal pour partager des moments conviviaux en famille ou entre amis. Suite parentale : Une chambre confortable avec salle d'eau privative pour plus d'intimité. Deux chambres supplémentaires : Parfaites pour enfants, invités ou bureau, accompagnées d'une salle d'eau commune et d'un WC. Garage spacieux : Stationnement sécurisé ou espace de rangement complémentaire selon vos besoins. La maison sera livrée entièrement terminée en juillet 2026, vous permettant d'emménager sereinement dans un bien neuf, aux normes actuelles et prêt à vivre. Une opportunité rare de devenir propriétaire d'une villa moderne dans un cadre calme et recherché.
Honoraires à la charge du vendeur. Non soumis au DPE. Les informations sur les risques auxquels ce bien est exposé sont disponibles sur le site Géorisques : georisques.gouv.fr.
Votre conseiller Cimm immobilier Mazan : Laetitia DELMAS
Agent commercial (Entreprise individuelle)
RSAC Avignon 517 876 215
- Type de bien : Maison
- Surface : 120 m²
- Localisation : France - provence-alpes-cote-d-azur - Vaucluse
- Ville : Malemort-du-Comtat
- Code postal : 84570
- Disponible le 19/03/2026
- Annonce créée le 03/04/2026





