Vente Maison 37600, Loches france 187 000 €
Descriptif du bien
À Loches (37600), cette maison de 70 m² sur un terrain de 202 m² offre un cadre de vie paisible et charmant. Située dans un quartier calme, elle bénéficie de la proximité de commerces locaux, d'écoles et de transports en commun, offrant ainsi une belle qualité de vie aux résidents. Loches, ville dynamique et historique, propose un environnement culturel riche avec son château médiéval et ses nombreux sites touristiques.
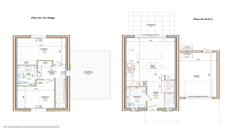
Cette maison récemment construite en 2026 se compose de 4 pièces, dont 2 chambres, 1 salle d'eau et 2 toilettes. Au rez-de-chaussée, on trouve une entrée donnant sur un séjour ouvert sur une cuisine aménagée. À l'étage, deux chambres lumineuses, une salle d'eau moderne et des toilettes offrent tout le confort nécessaire. Un garage complète ce bien, idéal pour une famille en quête d'un premier achat ou pour un investissement locatif.
Les informations sur les risques auxquels ce bien est exposé sont disponibles sur le site Géorisques : www.georisques.gouv.fr
Prix de vente : 187 000 ¤
Honoraires charge vendeur
Contactez votre conseiller SAFTI : Paola LAMOUR, Tél. : 06 76 17 42 90, E-mail : paola.lamour@safti.fr - EI - Agent commercial immatriculé au RSAC de TOURS sous le numéro 485 093 512.
Informations LOI ALUR :
Honoraires charge vendeur. (gedeon_26118_32131372)
- Type de bien : Maison
- Surface : 82 m²
- Localisation : France - centre-val-de-loire - Indre et Loire
- Ville : Loches
- Code postal : 37600
- Annonce mise à jour le 26/02/2026



