Vente Maison 79190, Limalonges france 56 000 €
Descriptif du bien
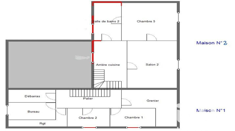
Iad France - Nathalie Sicault vous propose : NSI 1916910 2 Maisons à rénover - Fort potentiel d'investissement locatif
Idéal investisseur offre un fort potentiel de division pour un projet d'investissement locatif.
D'une superficie totale de 219 m², le bien dispose de deux entrées indépendantes, permettant d'envisager facilement la création de plusieurs logements après travaux.
Les maisons sont implantées sur un terrain équipé d'un puits et d'une fosse septique individuelle.
Elle bénéficie d'un emplacement pratique et recherché : à proximité immédiate de l'école primaire, à 5 minutes de toutes les commodités, et avec un accès rapide à la Nationale 10 (axe Poitiers - Angoulême).
Ce bien vous intéresse ? Je me tiens à votre disposition pour toute information ou pour planifier une visite.
Honoraires d'agence à la charge du vendeur.
Bien non soumis au DPE. Les informations sur les risques auxquels ce bien est exposé, y compris l'obligation légale de débroussaillement, sont disponibles sur le site Géorisques : http://www.georisques.gouv.fr.
La présente annonce immobilière a été rédigée sous la responsabilité éditoriale de Mme Nathalie Sicault mandataire indépendant en immobilier (sans détention de fonds), agent commercial de la SAS I@D France immatriculé au RSAC de NIORT sous le numéro 750707655, titulaire de la carte de démarchage immobilier pour le compte de la société I@D France SAS.
Informations LOI ALUR :
Honoraires charge vendeur. (gedeon_6727_32500392)
- Type de bien : Maison
- Surface : 219 m²
- Localisation : France - Nouvelle-Aquitaine - Deux-Sèvres
- Ville : Limalonges
- Code postal : 79190
- Annonce créée le 29/01/2026





