Vente Maison 44840, Les Sorinières france 302 500 €
1 / 3
Descriptif du bien
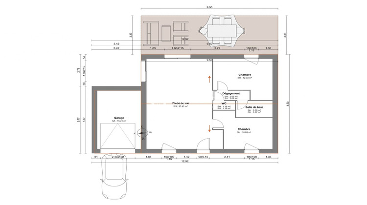
Une maison neuve avec un jardin d'environ 400m² comprenant une entrée sur pièce de vie, deux chambres, un dégagement desservant des toilettes et une salle de bains et un garage.
Honoraires inclus de 4.31% TTC à la charge de l'acquéreur. Prix hors honoraires 290 000 . DPE en cours. Les informations sur les risques auxquels ce bien est exposé sont disponibles sur le site Géorisques : georisques.gouv.fr.
Votre conseiller Agence Duret Vallet : Emilie REEMAN
Agent commercial (Entreprise individuelle)
- Type de bien : Maison
- Surface : 64 m²
- Localisation : France - pays-de-la-loire - Loire Atlantique
- Ville : Les Sorinières
- Code postal : 44840
- Annonce créée le 16/01/2026


