Vente Maison 83460, Les Arcs france 399 000 €
Descriptif du bien
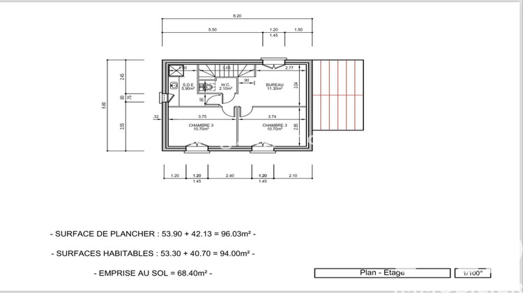
Iad France - Vanessa Prochasson vous propose : Les Arcs - Maison contemporaine 4 chambres avec jardinVous recherchez une maison moderne, fonctionnelle et bientôt prête à vous accueillir ? Cette maison contemporaine d'environ 100 m², actuellement en fin de construction, sera livrable à partir du 1er mai. Dès l'entrée, vous découvrirez une belle pièce de vie lumineuse avec cuisine ouverte, pensée pour un quotidien agréable et convivial. Le rez-de-chaussée propose également une chambre avec salle d'eau, idéale pour une suite parentale, un espace invité ou un bureau. À l'étage, vous trouverez 3 chambres, une salle de bains ainsi qu'un WC indépendant, avec un agencement optimisé pour toute la famille. À l'extérieur, la maison bénéficie d'un terrain de 340 m², facile à entretenir, avec stationnements privatifs. Le vrai plus : une maison neuve, aux prestations actuelles, offrant confort et sérénité, avec une livraison proche pour concrétiser rapidement votre projet de vie. À noter : l'aménagement extérieur, y compris un éventuel projet de piscine, restera à la charge des futurs propriétaires. De la même manière, la cuisine ne sera pas installée, afin de laisser à chacun la liberté de concevoir un espace à son goût et selon ses envies. Les salles d'eau, quant à elles, seront entièrement équipées. Important : les visuels d'aménagement présentés sont des propositions d'idées de mise en décoration et d'agencement, non contractuelles.? Les Arcs - secteur recherché, centre-ville et écoles à pied? 100 m² - 5 pièces - 4 chambres? Terrain 340 m²? 399 000 ¤Un bien idéal pour une famille en quête de confort, de modernité et d'un logement neuf où il ne restera bientôt plus qu'à imaginer les dernières finitions à son image. Honoraires d'agence à la charge du vendeur. Bien non soumis au DPE. Les informations sur les risques auxquels ce bien est exposé, y compris l'obligation légale de débroussaillement, sont disponibles sur le site Géorisques : http://www.georisques.gouv.fr.La présente annonce immobilière a été rédigée sous la responsabilité éditoriale de Mme Vanessa Prochasson mandataire indépendant en immobilier (sans détention de fonds), agent commercial de la SAS I@D France immatriculé au RSAC de Fréjus sous le numéro 881484802, titulaire de la carte de démarchage immobilier pour le compte de la société I@D France SAS.Informations LOI ALUR : Honoraires charge vendeur. (gedeon_6727_32915087)
- Type de bien : Maison
- Surface : 96 m²
- Localisation : France - provence-alpes-cote-d-azur - Var
- Ville : Les Arcs
- Code postal : 83460
- Annonce créée le 26/03/2026





