Vente Maison 20137, LECCI france 755 000 €
Descriptif du bien
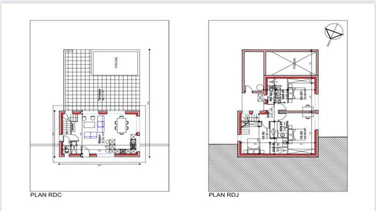
Villa T4 contemporaine - Proximité des plages et sérénité Implantée au coeur d'un environnement naturel paisible, cette villa récente de type T4 offre un cadre de vie harmonieux et une architecture contemporaine aux lignes épurées. Alliant fonctionnalité, confort et esthétisme, elle conviendra parfaitement aussi bien à un projet de résidence principale qu'à une résidence secondaire ou à un investissement locatif de qualité. Développée sur un terrain d'environ 560 m², la maison se déploie sur deux niveaux clairement définis : Niveau inférieur ? espace nuit Trois chambres confortables, chacune bénéficiant de sa salle d'eau privative avec vasque, assurant intimité et praticité. Un toilette indépendant complète ce niveau. Niveau supérieur : espace de vie Une vaste pièce de réception lumineuse accueille le séjour et la salle à manger, ouverts sur une cuisine aménagée et équipée. La hauteur sous plafond, les poutres apparentes et les volumes généreux confèrent à cet espace une atmosphère chaleureuse et conviviale, idéale pour recevoir. A l'extérieur, tout a été pensé pour profiter pleinement des beaux jours : une agréable terrasse avec pergola prolonge l'espace de vie et donne accès à une piscine au sel de 7,50 x 3 m Environnement privilégié La villa s'inscrit dans un lotissement confidentiel composé de seulement cinq habitations, chacune disposant de son accès indépendant Un bien harmonieux et soigné, offrant un excellent équilibre entre cadre naturel, confort moderne et potentiel patrimonial. Prix de Vente : 755 000 euros. Le prix indiqué comprend les honoraires de 3,99 % à la charge de l'acquéreur. Prix hors honoraires 726 000 euros Consommation énergétique A 54 kwh/m²/an Emission de gaz à effet de serre A 1 kg CO2/m²/an Estimation du cout annuel en énergie pour un usage standard entre 500 euros et 720 euros au 14/11/2024 Pour visiter et vous accompagner dans votre projet, contactez Kandy FLAJOLLET au 0623781869 par courriel à k.flajollet@proprietes-privees.com // ou Laurent FLAJOLLET au 06 62 25 58 40 par courriel à l.flajollet@proprietes-privees.com Prévoir : justificatifs d'identité (*) et attestation de financement valide de moins de 3 mois. Cette vente est garantie 12 mois Cette présente annonce a été rédigée sous la responsabilité éditoriale de Kandy et Laurent FLAJOLLET agissant sous le statut d'agents commerciaux immatriculés au RSAC Ajaccio 498912369 et 804573459 auprès de la SAS PROPRIETES PRIVEES, au capital de 40 000 euros, ZAC LE CHÊNE FERRÉ - 44 ALLÉE DES CINQ CONTINENTS 44120 VERTOU; SIRET 487 624 777 00040, RCS Nantes. Carte professionnelle Transactions sur immeubles et fonds de commerce (T) et Gestion immobilière (G) n° CPI 4401 2016 000 010 388 délivrée par la CCI Nantes - Saint Nazaire. Compte séquestre n°30932508467 BPA SAINT-SEBASTIEN-SUR-LOIRE (44230) ; Garantie GALIAN - 89 rue de la Boétie, 75008 Paris - n°28137 J pour 2 000 000 euros pour T et 120 000 euros pour G. Assurance responsabilité civile professionnelle par MMA Entreprise n° de police 120.137.405 A propos de la copropriété : Pas de procédure en cours Nombre de lots : 5 (dont 5 lots d'habitations) Copropriété en cours de constitution Mandat réf : 434423KFL - Le professionnel garantit et sécurise votre projet immobilier. (*) (Dans le cadre de la réglementation TRACFIN, le professionnel de l'immobilier a une obligation de vigilance. A ce titre, il doit être en mesure de vérifier l'identité du bénéficiaire effectif de l'opération dès la prise de contact et tout au long de la relation d'affaire.) (3.99 % honoraires TTC à la charge de l'acquéreur.) Copropriété de 5 lots - dont 5 lots habitation. (). Charges annuelles : 400 euros. Kandy et Laurent FLAJOLLET (EI) Agent Commercial - Numéro RSAC : ajaccio 498912369 - .
- Type de bien : Maison
- DPE : A -< 51 kWh/².an
- GES : A -< 6 kg eq CO2/².an
- Surface : 100 m²
- Localisation : France - Corse - Corse du sud
- Ville : LECCI
- Code postal : 20137
- Annonce créée le 17/01/2026





