Vente Maison 78110, Le Vésinet france 690 000 €
Descriptif du bien
Iad France - Guillaume Duchesne vous propose : Le Vésinet - Proximité immédiate du RER A Le Vésinet-Le Pecq, sans nuisance et au calme :
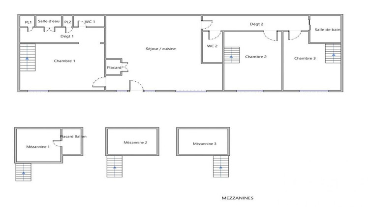
Située au Vésinet, cette charmante maison, construite en 2015 de 79 m² (avec en complément 14 m² répartis sur les 3 mezzanines des 3 chambres), offre un cadre de vie idéal pour une jeune famille en quête de confort et de tranquillité.
Les sols, les peintures viennent d'être refaites (janvier 2026).
Elle bénéficie d'une exposition à l'ouest et d'un jardin de plain pied arboré, offrant un espace extérieur propice à la détente à la belle saison.
La maison présente un séjour de 33 m² sur lequel donne la cuisine ouverte entièrement équipée, créant une ambiance moderne et chaleureuse. Pour les parents, un espace dédié composé d'une chambre avec sa propre salle de douche, ses nombreux rangements et sa mezzanine.
Deux chambres supplémentaires tournées vers le jardin et complétées chacune de leur mezzanine accueilleront vos enfants.
Une salle de bain est également à disposition pour répondre aux besoins de toute la famille.
Les prestations telles que le système de chauffage / climatisation réversible, assure un confort de vie optimal.
À l'extérieur, une agréable terrasse offre un espace extérieur privilégié pour profiter des belles journées ensoleillées. Le jardin paysager vous permettra de profiter de moments de détente en plein air. Un espace de rangement privatif extérieur pour les vélos et rangements divers complète l'ensemble.
Vous pourrez profiter d'un environnement paisible et sécurisé sans nuisance, du marché et des commerces à quelques minutes à pied.
Honoraires d'agence à la charge du vendeur.
Information d'affichage énergétique sur ce bien : classe ENERGIE C indice 134 et classe CLIMAT A indice 5. Les informations sur les risques auxquels ce bien est exposé, y compris l'obligation légale de débroussaillement, sont disponibles sur le site Géorisques : http://www.georisques.gouv.fr.
La présente annonce immobilière a été rédigée sous la responsabilité éditoriale de M Guillaume Duchesne mandataire indépendant en immobilier (sans détention de fonds), agent commercial de la SAS I@D France immatriculé au RSAC de Versailles sous le numéro 844702092, titulaire de la carte de démarchage immobilier pour le compte de la société I@D France SAS.Informations LOI ALUR : Honoraires charge vendeur. (gedeon_6727_33083758)
- Type de bien : Maison
- DPE : C - 91 à 150 kWh/².an
- GES : A -< 6 kg eq CO2/².an
- Surface : 79 m²
- Localisation : France - ile-de-france - Yvelines
- Ville : Le Vésinet
- Code postal : 78110
- Annonce créée le 23/04/2026





