Vente Maison 07400, Le Teil france 210 000 €
Descriptif du bien
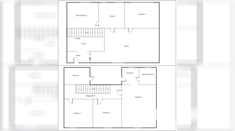
Iad France - Florian Delanoe vous propose : À Vendre - Maison de Village en Pierre au Teil (130 m²) - Calme, Cachet et Confort Moderne
Située dans un secteur très calme du Teil, cette maison de village en pierre de 130 m² offre un cadre de vie paisible tout en étant proche de toutes les commodités (commerces, écoles, transports, etc.). Un bien rare, idéal pour une famille ou un investissement.
Caractéristiques principales :
o4 grandes chambres lumineuses
oSpacieux salon, séjour et salle à manger
oCuisine équipée, ouverte et fonctionnelle
oHall d'entrée accueillant
o2 salles de bain et 2 toilettes séparées
oBuanderie
oPetit extérieur de 40 m², agréable et sans vis-à-vis
oTerrasse de 15 m², idéale pour profiter des beaux jours
oCaves en sous-sol, parfaites pour du rangement ou un atelier
oPompe à chaleur en système de chauffage, pour un confort optimal et des économies d'énergie
Cette maison séduit par son charme authentique avec ses murs en pierre apparente, ses beaux volumes et sa situation au calme, tout en restant à proximité immédiate des services essentiels.
À découvrir sans tarder.
Honoraires d'agence à la charge du vendeur.
Information d'affichage énergétique sur ce bien : classe ENERGIE C indice 132 et classe CLIMAT C indice 28. Les informations sur les risques auxquels ce bien est exposé, y compris l'obligation légale de débroussaillement, sont disponibles sur le site Géorisques : http://www.georisques.gouv.fr.
La présente annonce immobilière a été rédigée sous la responsabilité éditoriale de M Florian Delanoe mandataire indépendant en immobilier (sans détention de fonds), agent commercial de la SAS I@D France immatriculé au RSAC de romans sous le numéro 934502071, titulaire de la carte de démarchage immobilier pour le compte de la société I@D France SAS.
Informations LOI ALUR :
Honoraires charge vendeur. (gedeon_6727_32463819)
- Type de bien : Maison
- DPE : C - 91 à 150 kWh/².an
- GES : C - 11 à 20 kg eq CO2/².an
- Surface : 128 m²
- Localisation : France - Auvergne-Rhône-Alpes - Ardèche
- Ville : Le Teil
- Code postal : 07400
- Annonce créée le 22/01/2026





