Vente Maison 33320, Le Taillan-Médoc france 365 000 €
Descriptif du bien
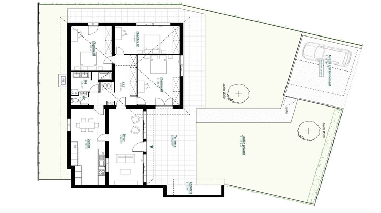
MAISON INDIVIDUELLE DE PLAIN-PIED : VOTRE HAVRE DE PAIX CLÉ EN MAIN
Découvrez un projet de vie unique où sérénité et praticité se rencontrent. Idéalement située dans un secteur prisé pour son calme absolu, cette maison s'inscrit dans un environnement verdoyant et préservé, loin de l'agitation urbaine tout en restant à proximité immédiate des commodités. C'est l'opportunité rare d'acquérir un véritable cocon de tranquillité, pensé pour ceux qui recherchent une qualité de vie supérieure et un cadre naturel apaisant pour voir grandir leur famille ou simplement profiter d'un quotidien au vert. Cette maison de plain-pied en pleine propriété offre un cadre de vie idéal, alliant confort, modernité et nature.
L'intérieur de la maison a été conçu avec un soin particulier pour optimiser les volumes et la lumière naturelle. Dès l'entrée, vous serez séduit par une vaste pièce de vie traversante, intégrant un salon chaleureux et une salle à manger conviviale ouverte sur une cuisine moderne entièrement équipée. L'espace nuit se compose de chambres spacieuses, avec salle d'eau double vasque et espace lave linge/sèche linge. Les finitions contemporaines, les nombreux rangements intégrés et l'accès direct depuis le séjour vers une terrasse ensoleillée font de cette demeure un lieu fonctionnel où chaque mètre carré est valorisé. Le petit plus : Une exposition idéale qui garantit une luminosité optimale tout au long de la journée.
Construite selon les normes RE2020, elle bénéficie d'un système de pompe à chaleur et de prestations haut de gamme, vous assurant des performances énergétiques optimales et un confort de vie durable.
À l'extérieur, deux places de stationnement privatives sont prévues à l'avant de la maison.
MAISON INDIVIDUELLE DE PLAIN-PIED : VOTRE HAVRE DE PAIX CLÉ EN MAIN
Honoraires à la charge du vendeur. DPE en cours. Les informations sur les risques auxquels ce bien est exposé sont disponibles sur le site Géorisques : georisques.gouv.fr.
Votre conseiller RH Patrimoine : Maxime HERVE
Agent commercial (Entreprise individuelle)
RSAC 133095555 J
RCP 13309666 J
- Type de bien : Maison
- Surface : 118 m²
- Localisation : France - Nouvelle-Aquitaine - Gironde
- Ville : Le Taillan-Médoc
- Code postal : 33320
- Annonce créée le 10/04/2026



