Vente Maison 33320, Le Taillan-Médoc france 385 000 €
Descriptif du bien
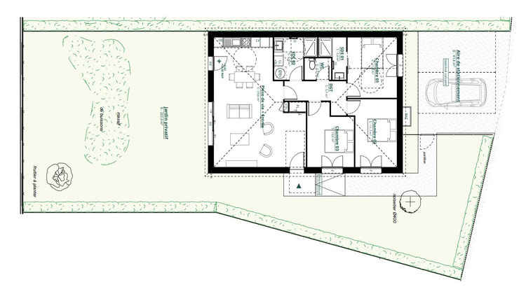
VOTRE MAISON DE PLAIN PIED AU COEUR D'UN ENVIRONNEMENT PAYSAGÉ
Située dans un cadre verdoyant et paisible au Taillan-Médoc, cette maison de plain-pied en pleine propriété offre un cadre de vie idéal, alliant confort, modernité et nature.
D'une surface de 92 m², elle s'ouvre sur une entrée avec placard et WC, menant à une vaste pièce de vie lumineuse, aux volumes généreux, qui se prolonge harmonieusement vers un jardin arboré et paysagé un véritable havre de paix à l'abri des regards.
Côté nuit, la maison dispose de deux chambres, ainsi qu'une suite parentale avec salle d'eau privative. Une deuxième salle d'eau vient compléter l'espace, garantissant un confort optimal pour toute la famille.
À l'extérieur, deux places de stationnement privatives sont prévues à l'avant de la maison.
Construite selon les normes RE2020, elle bénéficie d'un système de pompe à chaleur et de prestations haut de gamme, vous assurant des performances énergétiques optimales et un confort de vie durable.
VOTRE MAISON DE PLAIN PIED AU COEUR D'UN ENVIRONNEMENT PAYSAGÉ
Honoraires à la charge du vendeur. Non soumis au DPE. Les informations sur les risques auxquels ce bien est exposé sont disponibles sur le site Géorisques : georisques.gouv.fr.
Votre conseiller RH Patrimoine : Mathieu AUBERT
Agent commercial (Entreprise individuelle)
RSAC 905372389
RCP 133095770 D 001
- Type de bien : Maison
- Surface : 92 m²
- Localisation : France - Nouvelle-Aquitaine - Gironde
- Ville : Le Taillan-Médoc
- Code postal : 33320
- Annonce créée le 27/06/2025


