Vente Maison 13740, Le Rove france 599 000 €
Descriptif du bien
Iad France - Anne-Lise Lua vous propose : MAISON de 202 m² environ AU CALME proche des collines divisée en 3 APPARTEMENTS INDEPENDANTS + 1 GRAND GARAGE + JARDIN
Cette maison en bon état de 202 m² environ a été divisée en 3 APPARTEMENTS INDEPENDANTS + 1 GRAND GARAGE.
Elle peut être facilement modelée soit :
- Une seule belle maison de 202 m² environ avec 4 ou 5 chambres avec terrasses, jardin et garage fermé.
- Ou en un grand appartement de 160 m² environ au rez-de-chaussée puis un appartement au 1er étage de 42 m² environ, tous 2 avec une très belle terrasse plein sud.
- Ou être REVENDUS INDEPENDAMMENT (3 appartements).
Les 3 logements sont en bon état, climatisés et totalement indépendants (chacun possédant un bel extérieur) :
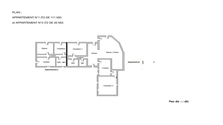
- APPARTEMENT N°1 : Au rez-de-chaussée, T3 loué de 111 m² environ avec de très belles prestations, un salon de plus de 30 m² environ, une cuisine séparée équipée de 15 m² environ, une très belle suite parentale de 30 m² environ avec dressing, douche, baignoire et WC, une 2ème chambre de 13 m² environ, une salle d'eau et WC supplémentaires, et pour couronner le tout un très bel extérieur de 100 m² environ
(Locatif : environ 1500 euros HC / mois / DPE : D et B)
- APPARTEMENT N°2 : Au rez-de-chaussée, T2 libre de 50 m² environ, avec une grande cuisine séparée, un salon de 15 m² environ, une chambre de 12 m² environ tous 2 climatisés et une salle d'eau avec WC. Un bel extérieur de plus de 80 m² environ complète ce bien.
(Locatif : 760 euros HC / mois environ / DPE : D et B).
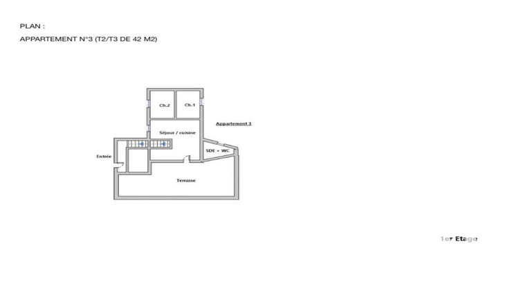
- APPARTEMENT N°3 : Au 1er étage (appartement libre) T2 / T3 de 42 m² environ comprenant un séjour avec cuisine ouverte de 20 m² environ donnant sur une belle terrasse de 40 m² environ, une salle de douche avec WC, et 2 chambres de 7,5 m² environ chacune avec rangements. Appartement climatisé avec store banne sur la terrasse.
(Locatif : 700 euros HC / mois environ / DPE C et A)
- GARAGE : Un Garage d'environ 50 m² environ complète cette maison
(Création de lots de copropriété possible pour revente en 3 ou 4 lots)
INVESTISSEURS, MARCHAND DE BIENS ou POUR Y LOGER en FAMILLE, tout est possible, n'hésitez plus et venez visiter ce bien d'exception !
Honoraires d'agence à la charge du vendeur.
Information d'affichage énergétique sur ce bien : classe ENERGIE D indice 245 et classe CLIMAT B indice 7. Les informations sur les risques auxquels ce bien est exposé, y compris l'obligation légale de débroussaillement, sont disponibles sur le site Géorisques : http://www.georisques.gouv.fr.
La présente annonce immobilière a été rédigée sous la responsabilité éditoriale de Mme Anne-Lise Lua mandataire indépendant en immobilier (sans détention de fonds), agent commercial de la SAS I@D France immatriculé au RSAC de AIX EN PROVENCE sous le numéro 918148396, titulaire de la carte de démarchage immobilier pour le compte de la société I@D France SAS.Informations LOI ALUR : Honoraires charge vendeur. (gedeon_6727_32806663)
- Type de bien : Maison
- DPE : D - 151 à 230 kWh/².an
- GES : B - 6 à 10 kg eq CO2/².an
- Surface : 202 m²
- Localisation : France - provence-alpes-cote-d-azur - Bouche-du-Rhone
- Ville : Le Rove
- Code postal : 13740
- Annonce créée le 16/04/2026




