Vente Maison 95130, LE PLESSIS-BOUCHARD france 416 000 €
Descriptif du bien
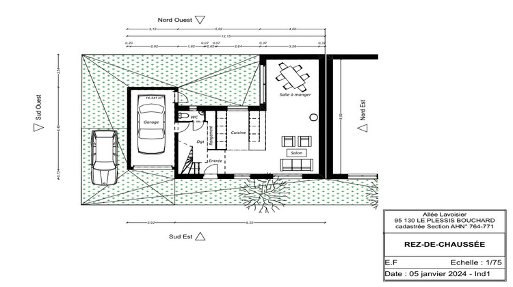
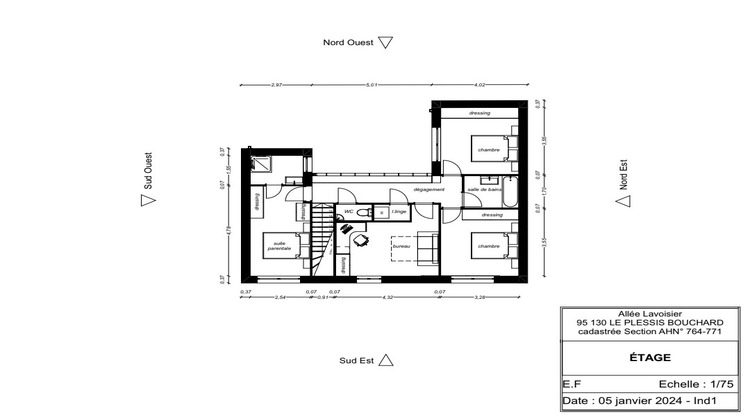
EXCLUSIVITE BMC immobilier !! Au sein d'une impasse, dans un secteur pavillonnaire situé à 12 minutes à pied de la gare de FRANCONVILE / LE PLESSIS-BOUCHARD qui est desservit par le RER C et la ligne H, à seulement 10 minutes à pied du centre-ville, des écoles et du marché du Plessis, nous vous proposons cette future maison 5 pièces de 118 m² au style contemporain. La construction est actuellement en cours et la livraison est prévue pour l'été!! Elle disposera d'une entrée avec placards, une magnifique pièce de vie de plus de 43 m² donnant directement sur la terrasse et le jardin, ainsi qu'un accès direct au garage. A l'étage; le palier desservira une salle de bains, un WC séparé, un espace buanderie et 4 belles chambres dont une suite parentale avec dressing et salle d'eau privative, chaque chambre comportera son dressing. Point de vue stationnement, un garage de 16 m² attenant à la maison + une place de stationnement extérieure sur la parcelle. UNE OCCASION UNIQUE SUR LE PLESSIS !!
- Type de bien : Maison
- Surface : 118 m²
- Localisation : France - ile-de-france - Val d'oise
- Ville : LE PLESSIS-BOUCHARD
- Code postal : 95130
- Annonce créée le 03/03/2026









