Vente Maison 24480, Le Buisson-de-Cadouin france 134 000 €
Descriptif du bien
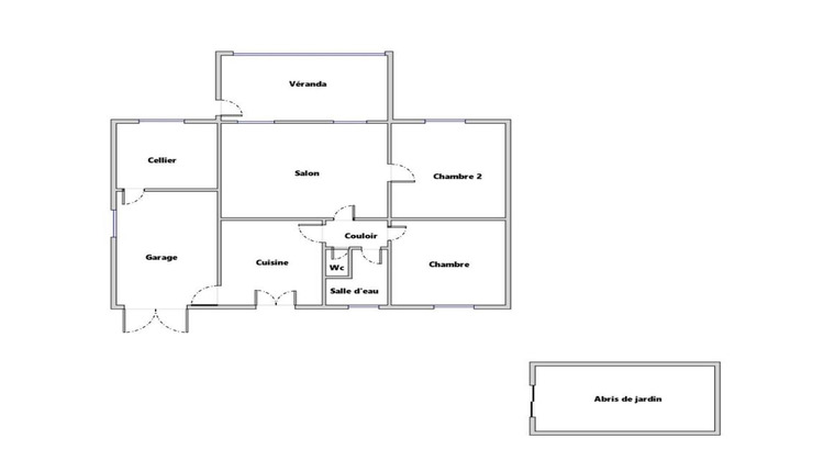
Sylvie Salles vous présente une maison. Implantée sur un jardin clos, cette maison comprend une cuisine équipée, un séjour et une véranda. Côté nuit, ce bien dispose de deux chambres, une salle d'eau et un WC indépendant. Un garage attenant à la maison avec un accès direct permet un agrandissement ou un aménagement supplémentaire. Quelques rafraîchissements sont à prévoir, cela vous permettra de le personnaliser selon vos goûts et vos besoins. Contactez-moi pour toutes informations complémentaires ou organiser une visite. Les informations sur les risques auxquels ce bien est exposé sont disponibles sur le site Géorisques : www.georisques.gouv.frPrix de vente honoraires d'agence inclus : 134 000 ¤Prix de vente hors honoraires d'agence : 122 610 ¤Honoraires charge acquéreur : 11 390 ¤ soit 9,29 % TTC de la valeur du bien hors honorairesContactez votre conseiller SAFTI : Sylvie SALLES, Tél. : 06 85 10 23 65, E-mail : sylvie.salles@safti.fr - EI - Agent commercial immatriculé au RSAC de BERGERAC sous le numéro 341 220 416.Informations LOI ALUR : Honoraires : 9.29 % TTC charge acquéreur. Prix hors honoraires : 122 610 ¤. (gedeon_26118_32849900)
- Type de bien : Maison
- DPE : E - 231 à 330 kWh/².an
- GES : C - 11 à 20 kg eq CO2/².an
- Surface : 67 m²
- Localisation : France - Nouvelle-Aquitaine - Dordogne
- Ville : Le Buisson-de-Cadouin
- Code postal : 24480
- Annonce créée le 19/03/2026





