Vente Maison 33110, LE BOUSCAT france 990 000 €
Descriptif du bien
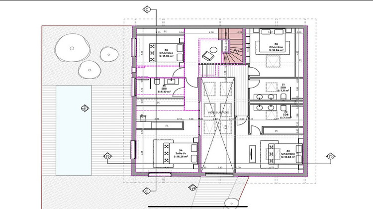
À Bordeaux, dans l'un des secteurs les plus recherchés, en lisière directe du Parc Bordelais, découvrez cette maison de 250 m² à rénover, un bien rare à fort potentiel. Implantée sur une belle parcelle piscinable, cette propriété au calme et exposée Sud bénéficie d'un permis de construire déjà accordé en mairie, vous permettant de concrétiser rapidement un projet de rénovation ou d'aménagement. Photos et plans d'aménagements potentiels sont disponibles afin de vous aider à vous projeter dans cet écrin de verdure au cœur de Bordeaux. Ce bien est également idéal pour l'installation d'un cabinet médical ou de toute profession libérale, grâce à son emplacement stratégique, sa visibilité et la configuration modulable des espaces. Surface : 250 m² habitables Terrain piscinable et projet accepté en mairie Accès direct au Parc Bordelais Permis de construire validé Photos et plans d'aménagement fournis Produit d'exception à fort potentiel de valorisation. Estimation des travaux à 300 000€ Localisation Premium – Bordeaux Parc Bordelais Une opportunité unique pour les particuliers, investisseurs ou professionnels en quête d'un lieu d'exception. Les honoraires d'agence sont à la charge de l'acquéreur, soit 4,21% TTC du prix hors honoraires. Les informations sur les risques auxquels ce bien est exposé sont disponibles sur le site Géorisques : www. georisques. gouv. fr. Réseau Immobilier CAPIFRANCE - Votre agent commercial (RSAC N°853 957 413 - Greffe de BORDEAUX) Mylène REYNAERT Entrepreneur Individuel 06 67 42 08 60 - Réf.915557
- Type de bien : Maison
- DPE : D - 151 à 230 kWh/².an
- GES : D - 21 à 35 kg eq CO2/².an
- Surface : 250 m²
- Localisation : France - Nouvelle-Aquitaine - Gironde
- Ville : LE BOUSCAT
- Code postal : 33110
- Annonce mise à jour le 07/03/2026





