Vente Maison 84360, LAURIS france 555 000 €
Descriptif du bien
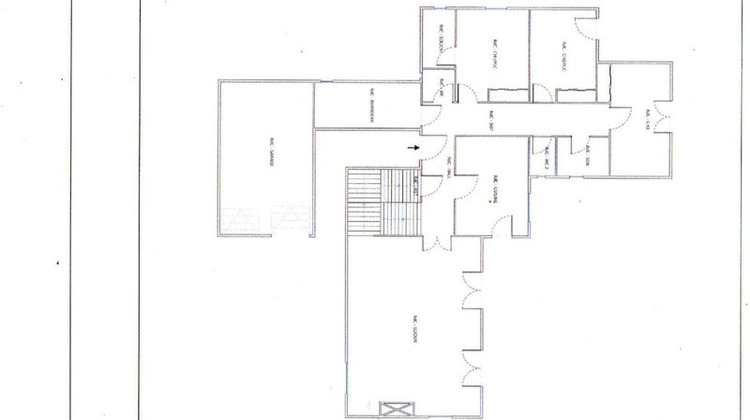
LAURIS à 30 minutes d'Aix en Provence, en région Provence-Alpes-Côte d' Azur. La ville se trouve dans le Parc Naturel régional du Luberon. Les communes et villages proche : Roque-d'Anthéron à 3.59 km, Lourmarin à 4.44 km, Cadenet à 5.18 km, Charleval à 6.39 km, Bonnieux à 8.41 km, Mérindol à 8.88 km, Vaugines à 9.00 km et Rognes à 9.66 km. Maison de 215 m² environ en surface au sol, 6 pièces, dont 175 m² habitable environ. Maison de 1993, avec son garage double sur un terrain plat de 3136 m², arboré. Composition du RDC : Hall, une pièce de rangement et WC. Cuisine de 13,15 m² environ accès direct sur la terrasse. Salon, séjour avec cheminée avec insert et plafond cathédrale de 38 m² et une vaste mezzanine ouverte et surplombant la pièce principale. 3 chambres : - Une chambre avec sa salle d'eau privative de 17m² environ - Une chambre 13 m²environ avec son accès sur sa terrasse privée - Une chambre 13 m² environ qui s'ouvre au Sud sur la jardin Une salle de bains Un deuxième WC Une buanderie de 9 m² environ qui donne directement accès au garage double porte pour 2 véhicules. Accès au 1 étage par des beaux escaliers en pierre de Menerbes, d'une belle couleur crème. Composition du 1 étage : 2 chambres : - Une chambre parentale de 14 m² environ avec sa salle d'eau privative de 4 m² avec WC , et son dressing privatif - Une seconde chambre, actuellement à usage de salle de sport de 13 m² environ - Accès du hall sur la mezzanine de 16 m² environ ouverte sur le séjour. Chauffage électrique, cheminée avec insert et poêle à bois. Fosse septique, vide sanitaire, volets bois et double vitrage de 93, mur et plafond au plâtre traditionnel. Quelques travaux seront à prévoir pour sublimer cette maison. Niché entre la Durance et l'immense parc naturel régional du Luberon, Lauris se dresse sur un éperon rocheux, trésors culturels inestimables. Ce village pittoresque se distingue par son authenticité et sa richesse historique. Ses ruelles bordées de maisons aux couleurs chaudes, ses terrasses accueillantes et son château historique. Situé en plein cœur de la Provence, son vieux village authentique aux ruelles fleuries, son jardin conservatoire des plantes tinctoriales sur les terrasses du château. Les honoraires sont à la charge du vendeur. Les informations sur les risques auxquels ce bien est exposé sont disponibles sur le site Géorisques : www. georisques. gouv. fr. Réseau Immobilier CAPIFRANCE - Votre agent commercial (RSAC N°837 940 170 - Greffe de AIX EN PROVENCE) Sylvette IMBERNON Entrepreneur Individuel 06 49 95 77 51 - Réf.895866
- Type de bien : Maison
- DPE : D - 151 à 230 kWh/².an
- GES : B - 6 à 10 kg eq CO2/².an
- Surface : 175 m²
- Localisation : France - provence-alpes-cote-d-azur - Vaucluse
- Ville : LAURIS
- Code postal : 84360
- Annonce mise à jour le 27/09/2025





