Vente Maison 06320, La Turbie france 630 000 €
Descriptif du bien
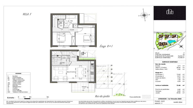
La Turbie, villa individuelle de 72,5 m2 à deux pas du centre et des commerces, mais aussi un emplacement stratégique non loin de Monaco et profitant aussi d'un accès rapide vers Nice. Jardin de 39 m2. Terrasse de 8 m2. Ensemble immobilier sécurisé comprenant 6 villas individuelles allant du T3 au T4. Chacune des villas dispose d'un jardin privatif avec terrasse et jacuzzi, deux places de stationnement privatif comprenant une attente pour borne de recharge électrique. Les villas sont toutes en R+1, le rez-de-chaussée est principalement voué à la pièce de vie dans laquelle vous retrouverez une cuisine aménagée ouverte sur le séjour salon donnant directement sur la terrasse et le jardin, quant à l'étage vous retrouverez l'ensemble de l'espace nuit.
Les informations sur les risques auxquels ce bien est exposé sont disponibles sur le site Géorisques : www.georisques.gouv.fr
- Type de bien : Maison
- Surface : 72 m²
- Localisation : France - provence-alpes-cote-d-azur - Alpes Maritimes
- Ville : La Turbie
- Code postal : 06320
- Annonce créée le 19/03/2025

