Vente Maison 44420, La Turballe france 245 000 €
Descriptif du bien
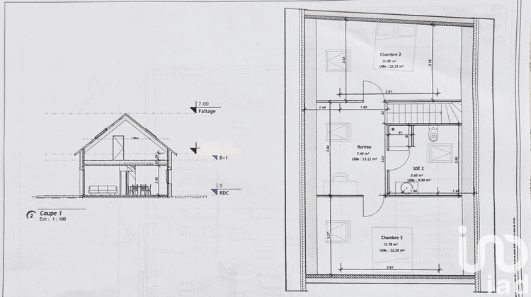
Iad France - Guillaume Jacquet vous propose : Maison 3 chambres de 106 m² environ, vendu hors d'eau, au sein d'un quartier agréable à 1km des plages et commerces.
Orientée sud-ouest, celle-ci vous offre la possibilité de poursuivre le projet actuel.
Au rez-de-chaussée, l'entrée dessert, pièce de vie, suite parentale avec sde et dressing, buanderie et wc indépendant.
À l'étage l'escalier offre l'accès à un espace bureau deux belles chambres et une sdb avec wc.
Il est également possible de personnaliser les espaces suivant vos envies et vos besoins.
Le terrain de 386 m² permet également divers aménagements et comprend déjà un garage.
Ne manquez pas l'occasion de devenir propriétaire de cette maison en devenir et contactez moi afin que je vous présente l'ensemble du projet.
Honoraires d'agence à la charge du vendeur.
Bien non soumis au DPE. Les informations sur les risques auxquels ce bien est exposé, y compris l'obligation légale de débroussaillement, sont disponibles sur le site Géorisques : http://www.georisques.gouv.fr.
La présente annonce immobilière a été rédigée sous la responsabilité éditoriale de M Guillaume Jacquet mandataire indépendant en immobilier (sans détention de fonds), agent commercial de la SAS I@D France immatriculé au RSAC de ST NAZAIRE sous le numéro 791546054, titulaire de la carte de démarchage immobilier pour le compte de la société I@D France SAS.Informations LOI ALUR : Honoraires charge vendeur. (gedeon_6727_32782057)
- Type de bien : Maison
- Surface : 106 m²
- Localisation : France - pays-de-la-loire - Loire Atlantique
- Ville : La Turballe
- Code postal : 44420
- Annonce créée le 16/04/2026




