Vente Maison 44310, LA LIMOUZINIERE france 152 900 €
Descriptif du bien
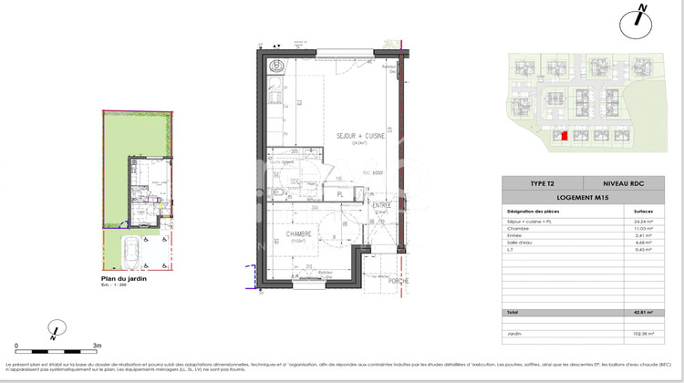
Découvrez "le Domaine de Bellevue" votre nouvel havre de paix dans une commune résidentielle où il fait bon vivre situé à l'angle de Belle vue , rue de la Moncire, 44310 La Limouzinière . Le domaine de Bellevue est idéalement situé entre Nantes et Challans offrant un accès facile au dynamisme environnant grâce à la proximité immédiate de la D63. Situé à proximité des écoles ( maternelle, primaire ) ,commerces, et transports , complexes sportifs et parc naturel . A partir de 152900 € , L'agence Revo immo vous présente la commercialisation d'une maison T2 d'une superficie de 43 m², composée d'un séjour cuisine , salle d'eau et une chambre et un jardin pour se détendre d'une superficie de 102,38m². Ne manquez pas cette opportunité de vivre dans un cadre préservé où le confort et la nature se rencontrent pour créer un cadre de vie agréable . N'hésitez pas à me contacter pour découvrir votre futur lieu de vie à La Limouzinière . SAS REVO IMMO - BEDOU Bastien EI - O684 500 553 - Plus d'informations sur www.revo.immo (réf. 4901051164). Agent commercial RSAC NANTES 912 299 351 - Prix TTC et Honoraires à charge vendeur TTC - Les informations sur les risques auxquels ce bien est exposé sont disponibles sur le site Géorisques : https://www.georisques.gouv.fr/.
- Type de bien : Maison
- Surface : 43 m²
- Localisation : France - pays-de-la-loire - Loire Atlantique
- Ville : LA LIMOUZINIERE
- Code postal : 44310
- Annonce créée le 17/11/2025




