Vente Maison 92250, La Garenne-Colombes france 388 500 €
Descriptif du bien
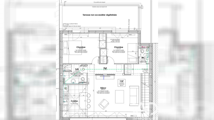
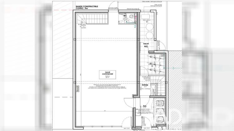
Iad France - David Baguet vous propose : Construisez votre maison avec terrasse, jardin et sous sol en plein coeur de La Garenne Colombes au dessus de votre local commercial. Vous bénéficiez d'un permis de construire purgé de tout recours des tiers et de tout retrait par la mairie. Tout est à construire. Situé dans un quartier prisé, le hangar à démolir représente 400 / 1000 ème de la copropriété. Vous ferez construire votre maison de 218 m² sur 3 niveaux avec une terrasse en plus et, vous bénéficierez d'un jardin privé de 55 m², offrant un espace extérieur idéal pour la détente. Exploitez le local commercial pour votre activité professionnelle (hors restauration) avec un rez de chaussée de 62 m², un sous sol de 87 m² soit un total de 150 m². Rejoignez, juste au-dessus, votre appartement de 68 m² avec une terrasse de 40 m². Au 1er étage, votre appartement comprend un séjour, un espace cuisine, 2 chambres spacieuses, une salle d'eau et les toilettes. Vous pourrez profiter de moments de détente sur la terrasse orientée sud-ouest, donnant sur le jardin. Le coût de construction de ce projet est à la charge du futur acquéreur. Un parking-box à 450 m est compris dans ce prix. Ne manquez pas cette occasion pour construire votre maison moderne et votre projet commercial dans l'un des quartiers les plus attractifs de La Garenne-Colombes. Contactez-moi dès maintenant pour plus d'informations et pour organiser une visite. La presente annonce immobiliere vise 1 lot situé dans une copropriété de 45 lots au total et ne faisant l'objet d'aucune procédure en cours citée à l'article L. 721-1 du code de la construction et de l'habitation. Montant moyen mensuel de charges déclaré par le vendeur : 66.67¤ par mois (soit 800 ¤ annuel). Honoraires d'agence à la charge du vendeur. Bien non soumis au DPE. Les informations sur les risques auxquels ce bien est exposé, y compris l'obligation légale de débroussaillement, sont disponibles sur le site Géorisques : http://www.georisques.gouv.fr.La présente annonce immobilière a été rédigée sous la responsabilité éditoriale de M David Baguet mandataire indépendant en immobilier (sans détention de fonds), agent commercial de la SAS I@D France immatriculé au RSAC de NANTERRE sous le numéro 493519581, titulaire de la carte de démarchage immobilier pour le compte de la société I@D France SAS.Informations LOI ALUR : Soumis au régime de copropriété. Nombre de lots : 45. Quote part annuelle(moyenne) : 800 euros. Honoraires charge vendeur. (gedeon_6727_32771239)
- Type de bien : Maison
- Surface : 218 m²
- Localisation : France - ile-de-france - Hauts de Seine
- Ville : La Garenne-Colombes
- Code postal : 92250
- Annonce créée le 05/03/2026





