Vente Maison 29940, LA FORET-FOUESNANT france 449 500 €
Descriptif du bien
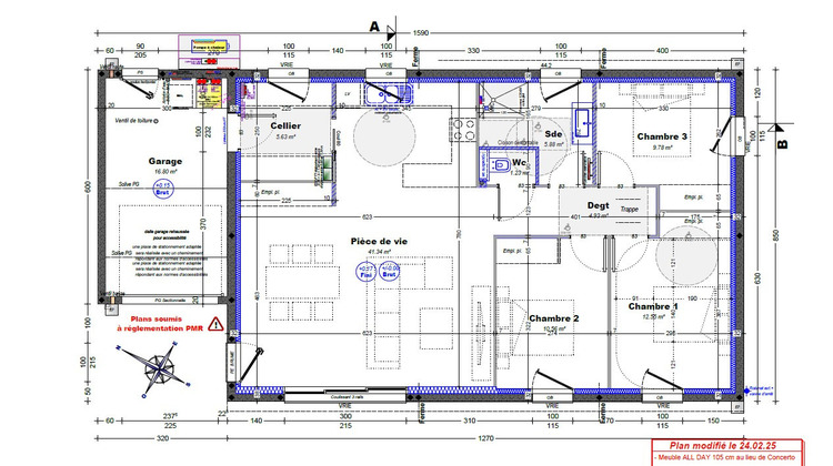
Seulement chez Villadici avec le Port et les commerces à pieds, cette maison de plain-pied aux normes PMR, d'environ 92m2 en cours de construction, livrable été 2026. Garantie décennale constructeur. Visuelle décoratrice d'intérieure (Non contractuelle). Elle se compose d'une pièce de vie avec cuisine ouverte de 41.34m2, 3 chambres, une salle d'eau, un cellier, un dégagement, un wc. Un garage attenant et communiquant et jardin devant. Chauffage par pompe à chaleur, avec sol chauffant. Le tout sur un terrain de 545m2 qui sera livré paysagé. Chemin d'accès en indivision avec le voisin mitoyen par le garage. Possibilité de tout faire à pieds: La cale à 10 minutes, les commerces à 13 minutes et le Port à 15 minutes. Les informations sur les risques auxquels ce bien est exposé sont disponibles sur le site Géorisques : https://www.georisques.gouv.fr/ Pour tout renseignement, merci de contacter Thibaud Kempen au 06.07.79.57.38 Agent Commercial Indépendant (E.I) RSAC 523 682 268 (4.53 % honoraires TTC à la charge de l'acquéreur.) THIBAUD KEMPEN (EI) Agent Commercial - Numéro RSAC : 523 682 268 - Quimper.








