Vente Maison 35320, La Couyère france 183 813 €
Descriptif du bien
Terrain à bâtir, libre de constructeur, viabilisé, au sein d'un petit lotissement conçu pour seulement 9 lots d'habitations individuelles sous forme de quartier en extension de bourg. Architecture dans le respect de l'environnement, avec un cadre paysager préservé et réservant un ensoleillement maximal pour chaque parcelle
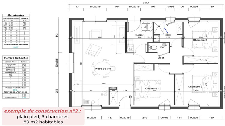
Mise en relation possible avec un maître d'oeuvre : LOT N°9 avec exemples de réalisation Maison 3 chambres environ 89 m2 habitables ou Maison 2 chambres environ 75m2 et un garage de 15 m2
compris dans le prix : Étude thermique TTC : environ 1000 - Prix plans et permis : 1200 TTC (Construction Réglementation thermique RT 2020 avec pré-étude par cabinet indépendant sur plans et test d'étanchéité à l'air fait en fin de chantier par un second cabinet d'étude, le dernier cabinet valide la conformité), frais maitre d'oeuvre, frais d'agence immobilière (forfait à charge acquéreur 2500)
non compris dans le prix : frais de notaires estimés à 4300 , assurance dommages-ouvrage, frais d'adaptation éventuelle du terrain, peinture intérieure, placards, sols dans chambres, dressing, bureau, pallier et mezzanine, vasques et lave mains, meubles de cuisine et électroménager.
Construction 145 500 + Terrain 38 313 = 183 813
Eligible PTZ 2025
La Couyère : école, médiathèque, espace numérique, terrain multisports et de jeux, centre d'astronomie, restaurant
, à 9km de la gare de Janzé, 15km de Bain de Bretagne, 25 minutes de Rennes (métro Poterie) et de Chateaubriant.
Votre contact de proximité : Viviane Lamour 06 27 81 52 41
Non soumis au DPE - Prix du bien : 38 313 - Prix du bien hors honoraires : 35 813 - Honoraires TTC : forfait 2 500 à la charge de l'acquéreur
« Les informations sur les risques auxquels ce bien est exposé sont disponibles sur le site Géorisques : www. georisques. gouv. fr ».
- Type de bien : Maison
- Surface : 89 m²
- Localisation : France - Bretagne - Ile et Vilaine
- Ville : La Couyère
- Code postal : 35320
- Annonce créée le 30/05/2025





