Vente Maison 67230, Kertzfeld france 312 000 €
Descriptif du bien
Situé à Kertzfeld, dans un environnement calme et résidentiel, découvrez ce projet de construction sur un terrain de 3,47 ares, idéal pour une résidence principale moderne et fonctionnelle.
? Terrain : 3,47 ares
? Maison individuelle de 95 m² habitables
? Projet projette de manière optimisée
? Environnement agréable et peu passant
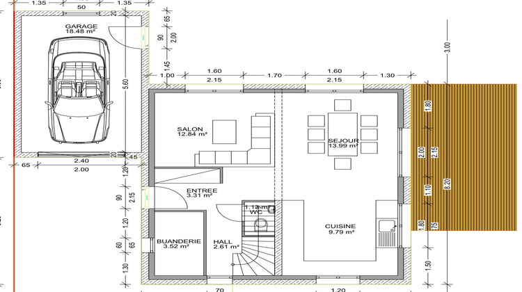
? Descriptif du projet
Ce projet propose une maison contemporaine avec chauffage au sol, pensée pour offrir confort, luminosité et fonctionnalité au quotidien.
Au rez-de-chaussée :
Entrée
Espace de vie lumineux comprenant salon / séjour / cuisine ouverte
WC indépendants
Buanderie
Garage attenant
À l'étage :
3 chambres confortables
Salle de bain familiale
toilettes
Prestations:
Pompe à chaleur air/eau
Chauffage au sol au rez-de-chaussée
Carrelage au sol au rez-de-chaussée
Sols stratifiés à l'étage
Construction conforme aux normes énergétiques en vigueur
Ce projet est idéal pour une famille souhaitant s'installer dans un cadre de vie agréable, tout en restant proche des commodités et des axes principaux.
? Kertzfeld séduit par son cadre de vie, son esprit village et sa situation géographique recherchée.
? Contactez-nous pour plus d'informations, découvrez les possibilités d'aménagement ou étudiez votre projet personnalisé.
DPE vierge. Les informations sur les risques auxquels ce bien est exposé sont disponibles sur le site Géorisques : georisques.gouv.fr.
- Type de bien : Maison
- Surface : 95 m²
- Localisation : France - Grand Est - Rhin (Bas)
- Ville : Kertzfeld
- Code postal : 67230
- Annonce créée le 27/02/2026



