Vente Maison 57920, Kédange-sur-Canner france 246 000 €
Descriptif du bien
Situé à 7 minute de kédange sur Canner sur la commune d'Ebersviller.
En collaboration avec le constructeur Babeau Seguin
Différents projets possibles,
Maison Focus 91m² + garage + terrain = 246 000
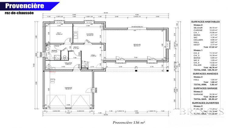
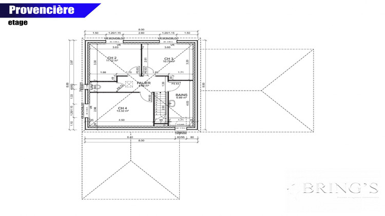
Maison Provencière de 136m²+ garage = terrain = 357 000
Ou tout autres projets selon vos envies.
Si vous cherchez un terrain avec une grande façade ( 25m environ ) et une surface permettant de ne pas avoir de voisinage proche, ce terrain est fait pour vous.
Plus de 23 ares de terrain dont 9.88 constructible permettant un grand choix de constructions ( plain-pied, étages, forme libre ...)
Il dispose d'un accès à l'avant mais également sur tout l'arrière du terrain.
Entièrement plat, vous n'aurais pas de travaux de remblais ou autre et toute la surface est exploitable.
A vos projets
Contact : Jocelin FANGEAT - 06.52.32.67.61
Honoraires à la charge du vendeur. DPE en cours. Les informations sur les risques auxquels ce bien est exposé sont disponibles sur le site Géorisques : georisques.gouv.fr.
Votre conseiller BRING'S-Réseau et agence immobilière Paris : Jocelin FANGEAT
Agent commercial (Entreprise individuelle)
RSAC 514911379
RCP 59661778





