Vente Maison 64320, Idron france 459 000 €
Descriptif du bien
Dernière opportunité sur le haut d'Idron: Votre maison neuve + terrain à partir de 459.000!
Avec une situation privilégiée, sa vue sur les Pyrénées et sa proximité du centre du village, bus et école, cette maison de plain pied vous séduira par son architecture contemporaine et sa grande qualité de construction.
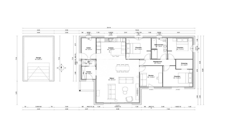
Cette maison avec garage de 144m² + carport, se compose d'un bel hall d'entrée menant à une spacieuse et lumineuse pièce de vie de 45m², un wc séparé, quatre chambres (possibilité suite parentale) dont une avec dressing, salle de bain, cellier et grande terrasse.
Cette maison est personnalisable et saura s'adapter à vos besoins.
A noter que le prix affiché est hors cuisine, sols chambres, peintures, dressing, piscine, aménagement extérieur, TLE et TRE.
Pour plus d'information ou pour étudier une adaptation sur mesure de cette villa en partenariat exclusif avec notre constructeur, contacter nous à gré au:
Alexandra Barizza: 06.19.98.62.17
Julie JOANIN: 06.99.23.47.02
Honoraires à la charge du vendeur. Non soumis au DPE. Les informations sur les risques auxquels ce bien est exposé sont disponibles sur le site Géorisques : georisques.gouv.fr.
- Type de bien : Maison
- Surface : 128 m²
- Localisation : France - Nouvelle-Aquitaine - Pyrénées-Atlantique
- Ville : Idron
- Code postal : 64320
- Annonce créée le 12/12/2025





