Vente Maison 45130, Huisseau-sur-Mauves france 241 500 €
Descriptif du bien
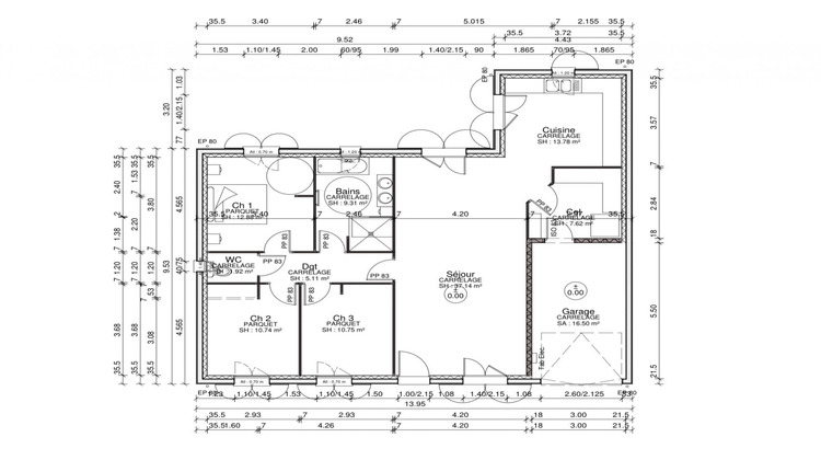
Sur la commune de Huisseau sur Mauves, découvrez cette maison neuve, en construction de 110 m2 et de plain pied.
Sur un terrain de 432 m2 dans un lotissement, cette maison en cours de construction est proposée à la vente. La livraison est prévue en 2026.
Elle se compose de :
- un séjour ouvert sur la terrasse
- une cuisine équipée ouverte sur la pièce de vie et sur la terrasse
- un cellier pour le côté pratique
- trois chambres
- une grande salle de bains avec baignoire et douche
- un WC indépendant
En annexe:
- un garage
N'hésitez pas à me contacter pour plus d'informations : Cassandra
Honoraires inclus de 5% TTC à la charge de l'acquéreur. Prix hors honoraires 230 000 . Non soumis au DPE. Les informations sur les risques auxquels ce bien est exposé sont disponibles sur le site Géorisques : georisques.gouv.fr. Ce bien vous est proposé par un agent commercial (Entreprise individuelle).
Votre conseiller IMMODREAM : Cassandra TAFALLOT
Agent commercial (Entreprise individuelle)
RSAC 918983412
RCP ALLIANZ
- Type de bien : Maison
- Surface : 110 m²
- Localisation : France - centre-val-de-loire - Loiret
- Ville : Huisseau-sur-Mauves
- Code postal : 45130
- Annonce créée le 07/11/2025



