Vente Maison 55400, Herméville-en-Woëvre france 69 000 €
Descriptif du bien
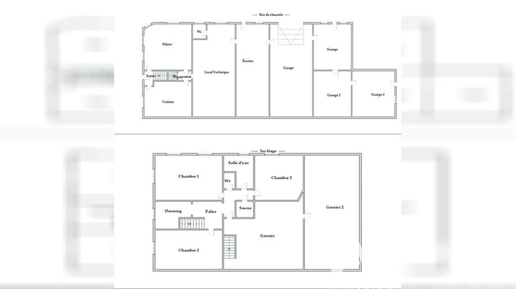
Iad France - Julien Jackowski vous propose : * FORT POTENTIEL pour cette Maison de Village à Rénover totalement avec dépendances et terrain - Charme Authentique - * Nichée au cOEur du village d'Herméville-en-Woëvre, à 7 minutes d'Etain, 20 minutes de Verdun, 10 minutes de Fresnes-en-Woëvre, cette maison de village offre un potentiel exceptionnel pour les amateurs de rénovation. Avec une partie habitable de 157 m² sur deux étages (séjour, cuisine, 4 chambres, salle de bains, sauna, greniers ), elle offre de multiples possibilités d'aménagements. De nombreuses dépendances : que ce soit les greniers, l'atelier, la grange, le garage, les écuries, etc. plusieurs centaines de m² de dépendances ou de stockage à exploiter (activité agricole, artisan, stockage, etc. ) * Avantages * :1. * Potentiel de Rénovation * : Offrant une toile blanche pour exprimer votre créativité et façonner une demeure qui vous ressemble. 2. * Charme Authentique * : Profitez du caractère préservé de cette maison de village et créez un lieu de vie chaleureux et unique. 3. * Terrain * :qui permet d'envisager un magnifique jardin, un potager, ou tout autre aménagement extérieur selon vos souhaits. * Localisation * :Bénéficiant d'un emplacement au calme dans un village pittoresque, cette propriété offre un cadre de vie tranquille et authentique, tout en étant à proximité des commodités de la ville d'Etain. * Travaux à Prévoir * :Une rénovation complète est à prévoir pour redonner vie à cette maison, offrant ainsi l'opportunité de construire un chez-soi sur mesure, à votre image. N'attendez plus pour concrétiser votre projet de rénovation et redonner vie à cette charmante maison de village. Contactez-moi pour organiser une visite et laissez libre cours à votre imagination pour créer le cocon de vos rêves. Honoraires d'agence à la charge du vendeur. Information d'affichage énergétique sur ce bien : classe ENERGIE G indice 468 et classe CLIMAT C indice 15. Les informations sur les risques auxquels ce bien est exposé, y compris l'obligation légale de débroussaillement, sont disponibles sur le site Géorisques : http://www.georisques.gouv.fr.La présente annonce immobilière a été rédigée sous la responsabilité éditoriale de M Julien Jackowski mandataire indépendant en immobilier (sans détention de fonds), agent commercial de la SAS I@D France immatriculé au RSAC de BRIEY sous le numéro 901443572, titulaire de la carte de démarchage immobilier pour le compte de la société I@D France SAS.Informations LOI ALUR : Honoraires charge vendeur. (gedeon_6727_32425421)





