Vente Maison 50400, GRANVILLE france 569 000 €
Descriptif du bien
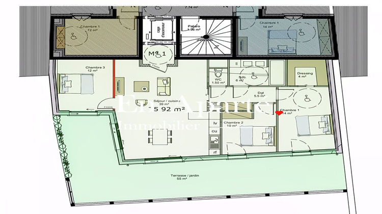
En Aparté, l'adresse pour trouver la vôtre, vous propose à la vente au prix de 569.000 Euros, cette très belle maison au coeur de ville. Elle dispose d'une grande pièce de vie sur terrasse et jardin avec cuisine ouverte, trois chambres dont une suite parentale avec un grand dressing, une salle de douche, des WC indépendants. La haute qualité de la construction et des prestations vous permet un confort thermique en toute saison. Un ascenseur permet l'accès de façon exclusif au logement depuis la rue commerçante d'un côté et elle permet un autre accès de l'autre côté au quartier très recherché de Saint-Paul ! Son exposition Sud-Ouest assure une parfaite luminosité. Une maison avec vie de plain pieds, aux normes PMR de cette qualité et à un emplacement privilégié est un produit rare sur Granville, En Aparté se fera un plaisir de vous la présenter. Les risques auxquels ce bien est exposé sont disponibles sur le site Géorisques : www.georisques.gouv.fr Copropriété de 9 lots ().

