Vente Maison 69700, GIVORS france 285 000 €
Descriptif du bien
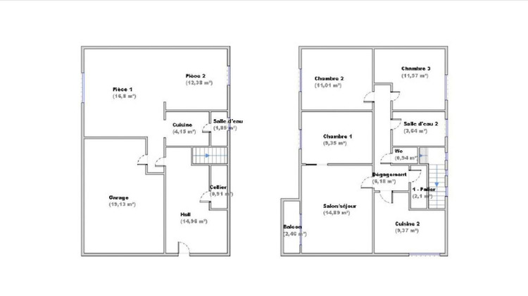
A rénover à Givors, dans un quartier résidentiel calme et agréable, maison individuelle d'environ 120 m² habitables. Terraint clôturé et piscinable d'environ 640 m². - Au Sous-sol : grande pièce à vivre, une cuisine d'été, douche, WC et spacieux garage, - À l'étage : cuisine séparé, séjour lumineux, trois chambres, salle de bain, WC ind. Possibilité de faire 2 habitations. Chauffage au gaz avec chaudière à condensation récente, Taxe foncière : 1 039 €/an, Proximité des écoles, commerces et accès aux grands axes, tout en bénéficiant d'un cadre serein. Une belle opportunité à visiter… et à discuter ! Pour visiter et vous accompagner dans votre projet immobilier, contactez Sandrine DENIS au 06 33 35 16 48. Prix de vente : 285 000 € Honoraires à la charge du vendeur Bien soumis au statut juridique de la copropriété. Nombre de lots : 10 Charges annuelles de copropriété (montant moyen annuel quote-part vendeur) : 280 € Pas de procédure en cours. Surface CARREZ : 120 m² Montant estimé des dépenses annuelles d'énergie pour un usage standard : entre 3 400 € et 4 650 € par an Prix moyens des énergies indexés sur les années 2021, 2022 et 2023 (abonnement compris). DPE : F – GES : F DPE élevé : consommation excessive Selon l'article L.561-5 du Code Monétaire et Financier, pour l'organisation de la visite, la présentation d'une pièce d'identité pourra être demandée. Les informations sur les risques auxquels ce bien est exposé sont disponibles sur le site Géorisques. Annonce rédigée sous la responsabilité éditoriale de Sandrine DENIS, agent commercial immatriculé, agissant pour le compte de la SAS IMMO RÉSEAU, réseau national immobilier sur internet – 44 Allée des Cinq Continents, 44120 Vertou – RCS Nantes 519 718 886. Carte professionnelle T et G n° CPI 3002 2018 000 024 971 – CCI Nantes-Saint-Nazaire. Garantie financière et assurance RCP souscrites auprès de GALIAN. (Réf. 36171 – Le professionnel garantit et sécurise votre projet immobilier.)
- Type de bien : Maison
- DPE : F - 331 à 450 kWh/².an
- GES : F - 56 à 80 kg eq CO2/².an
- Surface : 120 m²
- Localisation : France - Auvergne-Rhône-Alpes - Rhône
- Ville : GIVORS
- Code postal : 69700
- Annonce créée le 10/01/2026





