Vente Maison 35850, GEVEZE france 462 000 €
Descriptif du bien
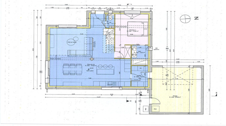
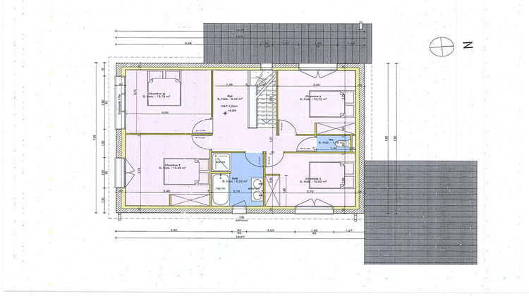
MAISON NEUVE DE 138m² DISPONIBLE DE SUITE !!! A vendre, à 5mn de Geveze, sur la commune de Romillé sur un terrain de 600m² hors lotissement , une maison neuve de 138 m² : elle est composée au rez-de-chaussée d 'un hall d'entrée donnant sur une lumineuse pièce de vie de 51m² , une cuisine aménagée et entièrement équipée , une arrière-cuisine avec coin buanderie , WC avec lave-mains, une suite parentale avec dressing , placard et salle d'eau privative avec douche à l' italienne et meuble double vasque. A l'étage, un espace mezzanine dessert 4 belles chambres parquetées avec placard aménagé , un WC séparé et une salle de bains complète avec baignoire , douche et meuble double vasque. Grand terrain clos et arboré de 600m² avec terrasse de 50m² idéalement exposée sans vis à vis. un grand parking -cour peut acceuillir plusieurs véhicules ou camping car .Classe Energie: A . Prix de vente de 462 000 euros frais d 'agence inclus . Les informations sur les risques auxquels ce bien est exposé sont disponibles sur le site Géorisques : http://www.georisques.gouv . Retrouvez tous nos biens sur notre site : www.crespelimmobilier.bzh ou contacter l'agence au : 02 23 41 15 53
- Type de bien : Maison
- DPE : A -< 51 kWh/².an
- GES : A -< 6 kg eq CO2/².an
- Surface : 138 m²
- Localisation : France - Bretagne - Ile et Vilaine
- Ville : GEVEZE
- Code postal : 35850
- Annonce créée le 28/04/2026









