Vente Maison 44190, Gétigné france 303 000 €
Descriptif du bien
GÉTIGNÉ MAISONS NEUVES 2025 - 3 CHAMBRES, JARDIN ET STATIONNEMENTS
Sur la commune de Gétigné, découvrez cette maison neuve construites en 2025, récemment livrée et désormais disponible à la vente.
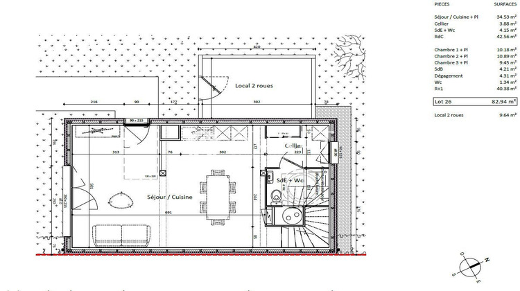
Maison d'environ 85 m² qui propose, au rez-de-chaussée, une belle pièce de vie d'environ 35 m², lumineuse et conviviale, avec un espace cuisine ouvert à aménager selon vos envies. Ce niveau dispose également d'un espace buanderie intégrant une salle d'eau avec WC, apportant confort et fonctionnalité au quotidien.
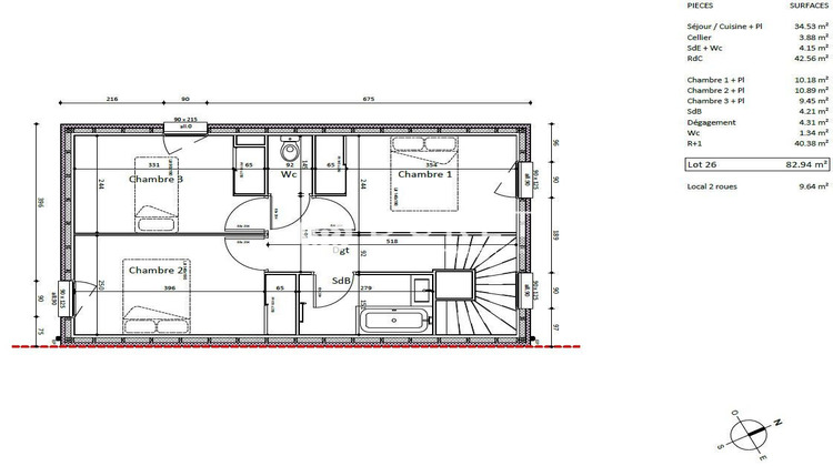
À l'étage, un palier dessert trois chambres, ainsi qu'une salle de bain et un WC, offrant un agencement idéal pour une vie de famille.
À l'extérieur, la maison bénéficie d'un jardin agréable et bien exposé, ainsi que de deux places de stationnement privatives.
Maison neuve, aux normes actuelles, prête à accueillir leurs premiers occupants, idéales pour une résidence principale ou un investissement sécurisé sur un secteur recherché.
Nos agences immobilières Duret sont joignables par téléphone du lundi au samedi, de 8h00 à 19h00, sans interruption.
COBE
Honoraires inclus de 4.48% TTC à la charge de l'acquéreur. Prix hors honoraires 290 000 . Non soumis au DPE. Les informations sur les risques auxquels ce bien est exposé sont disponibles sur le site Géorisques : georisques.gouv.fr.
AC ADC 4401 2022 000 003 199
- Type de bien : Maison
- Surface : 82 m²
- Localisation : France - pays-de-la-loire - Loire Atlantique
- Ville : Gétigné
- Code postal : 44190
- Annonce créée le 30/01/2026





