Mon compte
Accueil > Vente > Nouvelle-Aquitaine > charente > Vente Maison Gensac-la-pallue
Retour

Vente Maison Gensac-la-Pallue, 167 m²

Vente Maison 16130, Gensac-la-Pallue france 274 900 €

Suivre ce bien

Descriptif du bien

JEROME DESSET - Chasseur Immobilier - ADC.IMMO, vous présente :

Maison de Caractère à Gensac La Pallue - Environnement Bucolique
Située au 9 chemin du Gouffre, 16130 Gensac La Pallue, cette belle maison de caractère vous séduira par son cadre idyllique et son charme authentique.

Descriptif :
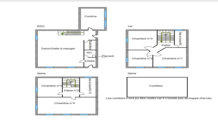
- Rez-de-chaussée : une entrée avec placard et WC, un vaste salon séjour lumineux avec emplacement prévu pour poêle, une cuisine aménagée et un cellier.
- 1er étage : trois chambres avec placards, une salle de bains avec WC.
- 2ème étage : deux chambres, une salle de bains avec WC.

Les atouts :
- Garage
- Jardin clos avec puits
- Chauffage au gaz de ville
- Assainissement tout à l'égout

Cette maison offre un potentiel certain et nécessite quelques travaux de rafraîchissement pour révéler tout son charme.

Venez découvrir ce havre de paix dans un environnement verdoyant, à seulement quelques minutes de Cognac !

IMPORTANT:
Chers clients: inutile d'aller déranger le vendeur !
Le propriétaire nous a sollicité pour le travail de commercialisation et de visites.

Chers confrères agents immobiliers & mandataires.
Si vous avez un client acquéreur pour ce bien ? contactez nous
Nous serons ravi de faire un inter-agence nous partagerons nos honoraires pour le plus grand bonheur de nos clients respectifs.

Pour toutes visites, contactez
Jérôme Desset Chasseur Immobilier
Négociateur immobilier depuis 2003
06 88 18 36 89
Dirigeant - Fondateur
L'Agence Des Chasseurs Immobiliers - ADC.IMMO

#chasseurimmobilier
#lagencedeschasseursimmobiliers
#jeromedessetchasseurimmobilier
#immobiliercognac
#agentimmobiliercognac

Honoraires inclus de 5.73% TTC à la charge de l'acquéreur. Prix hors honoraires 260 000 €. Classe énergie D, Classe climat D Montant estimé des dépenses annuelles d'énergie pour un usage standard : entre 2970.00 € et 4080.00 € sur les années 2021, 2022 et 2023 (abonnements compris). Les informations sur les risques auxquels ce bien est exposé sont disponibles sur le site Géorisques : georisques.gouv.fr.

Votre conseiller L'AGENCE DES CHASSEURS IMMOBILIERS : Dirigeant - Fondateur - Négociateur Immobilier depuis 2003 - Jérôme DESSET
Carte T CPI numero 1602 2020 000 000 001

  • Type de bien : Maison
  • DPE : D - 151 à 230 kWh/².an
  • GES : D - 21 à 35 kg eq CO2/².an
  • Surface : 167 m²
  • Localisation : France - Nouvelle-Aquitaine - Charente
  • Ville : Gensac-la-Pallue
  • Code postal : 16130
  • Annonce mise à jour le 24/10/2025

Biens similaires

Chargement en cours...

Commentaires ou Avis

Poster un commentaire ou un avis sur ce bien. Ce commentaire sera visible sur le sur le site, n’y inscrivez pas vos données personnelles