Vente Maison 45450, FAY-AUX-LOGES france 255 000 €
Descriptif du bien
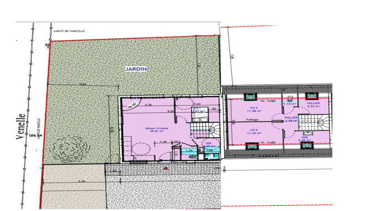
Le village de Fay-aux-Loges, labellisé Loir'étape, est traversé par le canal d'Orléans, il est idéalement situé entre la Forêt d'Orléans et le Val de Loire. Vous recherchez un investissement rentable et sécurisé Cette maison située au « coeur de Fay-aux-Loges » est une opportunité unique, parfaite pour profiter des avantages fiscaux du statut LMNP (Loueur Meublé Non Professionnel). Les atouts de cette maison : Typologie:T4 PMR, composée d'un séjour traversant très lumineux, de 3 chambres dont une en Rez de chaussée, 2 pièces d'eau, un cellier,2 WC séparés et un jardin privatif sans vis à vis. 2 places de stationnements sont également attribuées à chaque logement Surface : 95 m², offrant des espaces optimisés et fonctionnels. Emplacement : En plein centre-ville, à proximité immédiate des commerces, écoles et services. Potentiel locatif : Emplacement recherché, idéal pour une location à l'année ou en meublé. Avantages fiscaux : Profitez du dispositif LMNP, vous permettant une fiscalité avantageuse sur vos revenus locatifs. Cadre de vie : Fay-aux-Loges, une ville dynamique et paisible à la fois, située à seulement quelques minutes d'Orléans. Pourquoi investir - Rendement attractif : Une forte demande locative dans cette région. - Valorisation patrimoniale : Un bien immobilier dans un emplacement stratégique. - Fiscalité allégée grâce au régime LMNP. PRIX PROMOTEUR Frais de notaire 2.5% Pour tous renseignements contactez Isabelle Peignien au 07 82 82 83 81 Entrepreneur Individuel (EI) agissant en sa qualité d'agent commercial, régulièrement inscrit au Registre spécial des Agents commerciaux sous le numéro 2025AC00003 au GTC d'ORLEANS , ayant tous pouvoirs à l'effet des présentes, Pour trouver votre solution immobilière en Résidence principale ou secondaire, Défiscalisation, LMNP, Location, Gestion immobilière. Les informations sur les risques auxquels ce bien est exposé sont disponibles sur le site Géorisques : www.georisques.gouv.fr.
- Type de bien : Maison
- Surface : 95 m²
- Localisation : France - centre-val-de-loire - Loiret
- Ville : FAY-AUX-LOGES
- Code postal : 45450
- Annonce créée le 04/02/2025


