Vente Maison 35800, Dinard france 499 000 €
Descriptif du bien
Iad France - Jean Pontes (07 67 03 73 39) vous propose : DINARD - UN BIEN D'EXCEPTION ENTRE MER ET RANCE
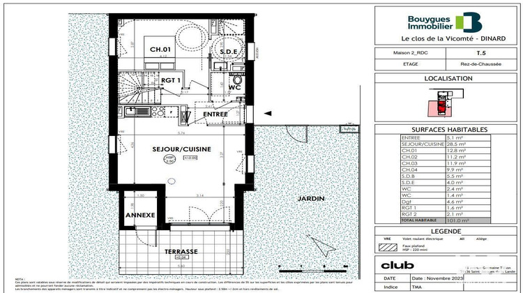
Quartier de la Vicomté
Au cOEur de Dinard, station balnéaire emblématique de la côte d'Émeraude, réputée pour ses vues sur mer, ses villas Belle Époque et son art de vivre unique, découvrez une opportunité rare dans le quartier recherché de la Vicomté.
Un environnement privilégié
Située dans un secteur calme, boisé et préservé, la résidence bénéficie d'un emplacement idéal, à l'écart de l'effervescence touristique tout en restant proche des incontournables de la ville.
À quelques pas de la plage du Pissot et en bordure de la Rance, le cadre est tout simplement exceptionnel.
Un marché locatif porteur
Dinard offre un marché locatif dynamique et sécurisé, porté par une forte attractivité à l'année comme en saison.
Demande soutenue en location meublée ou nue
Patrimoine ancien de caractère, typique de l'architecture dinardaise
Un emplacement idéal pour un investissement pérenne ou une résidence principale / secondaire.
Une localisation stratégique
Saint-Malo à seulement 10 minutes
Zone d'activités de Saint-Jouan-des-Guérets à 15 minutes
Proximité immédiate du pôle économique de Saint-Malo
Un bien rare alliant charme, sérénité et potentiel locatif, au cOEur de l'une des destinations les plus prisées de Bretagne.
À découvrir rapidement - une opportunité unique sur le secteur.
Honoraires d'agence à la charge du vendeur. Bien non soumis au DPE. Les informations sur les risques auxquels ce bien est exposé sont disponibles sur le site Géorisques : www.georisques.gouv.fr. La présente annonce immobilière a été rédigée sous la responsabilité éditoriale de M. Jean Pontes EI (ID 35006), mandataire indépendant en immobilier (sans détention de fonds), agent commercial de la SAS I@D France immatriculé au RSAC de ANGERS sous le numéro 484017314, titulaire de la carte de démarchage immobilier pour le compte de la société I@D France SAS.
Retrouvez tous nos biens sur notre site internet. www.iadfrance.fr.
Informations LOI ALUR :
Honoraires charge vendeur. (gedeon_6727_32349109)
- Type de bien : Maison
- Surface : 101 m²
- Localisation : France - Bretagne - Ile et Vilaine
- Ville : Dinard
- Code postal : 35800
- Annonce créée le 25/12/2025



