Vente Maison 33670, Créon france 590 000 €
Descriptif du bien
Iad France - Cedric Blanchard vous propose : MAISON Récente de 202 m² - JARDIN, TERRASSE ET GARAGE - CRÉON
déjà disponible aux visites !
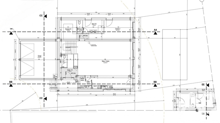
Située à Créon, dans un environnement calme et recherché, cette maison neuve de 202 m², actuellement en cours d'achèvement, offre un cadre de vie moderne et confortable, idéal pour une famille.
Le rez-de-chaussée propose un vaste espace de vie lumineux composé d'un séjour et d'une cuisine ouverte et équipée, bénéficiant de larges baies vitrées donnant accès au jardin et à la terrasse en travertin. Ce niveau comprends également une vaste chambre parentale avec sa pièce dressing et une salle de bain, des WC indépendants, un cellier buanderie.
À l'étage le palier immense est un véritable espace de vie donnant sur le grand balcon terrasse en bois exotique le long de la maison, desservant 3 chambres dont chacune disposant de sa salle d'eau privative, des WC indépendants.
Grand garage double de 36 m².
Les prestations prévues sont de standing :
- Chauffage individuel par pompe à chaleur réversible
- Climatisation
- Fibre optique
- Ventilation mécanique contrôlée
- Porte blindée
- Matériaux contemporains et finitions soignées
À l'extérieur, la maison disposera d'un jardin, d'une terrasse en prolongement de la pièce de vie en travertin et de deux places de stationnement.
Les visuels présentés sont des images de projection générées par intelligence artificielle, non contractuelles, permettant d'illustrer les volumes et les possibilités d'aménagement intérieur.
Idéalement située à proximité des commerces, des écoles et des commodités de Créon, cette maison représente une opportunité rare d'acquérir un bien neuf sans les contraintes d'une construction à lancer.
Pour toute information complémentaire sur l'état d'avancement des travaux ou pour organiser une visite, merci de nous contacter.
Honoraires d'agence à la charge du vendeur.
Information d'affichage énergétique sur ce bien : classe ENERGIE A indice 43 et classe CLIMAT A indice 1. Les informations sur les risques auxquels ce bien est exposé, y compris l'obligation légale de débroussaillement, sont disponibles sur le site Géorisques : http://www.georisques.gouv.fr.
La présente annonce immobilière a été rédigée sous la responsabilité éditoriale de M Cedric Blanchard mandataire indépendant en immobilier (sans détention de fonds), agent commercial de la SAS I@D France immatriculé au RSAC de Bordeaux sous le numéro 899053334, titulaire de la carte de démarchage immobilier pour le compte de la société I@D France SAS.Informations LOI ALUR : Honoraires charge vendeur. (gedeon_6727_32540039)
- Type de bien : Maison
- DPE : A -< 51 kWh/².an
- GES : A -< 6 kg eq CO2/².an
- Surface : 202 m²
- Localisation : France - Nouvelle-Aquitaine - Gironde
- Ville : Créon
- Code postal : 33670
- Annonce créée le 16/04/2026





