Vente Maison 29900, Concarneau france 405 000 €
Descriptif du bien
L'agence 'MON BIEN A LA MER', spécialiste de l'immobilier neuf sur les côtes Bretonnes, vous présente :
Rare - Nouvelle résidence de seulement 6 maisons sur les hauteurs de CONCARNEAU, à moins de 10 min à pied du Port, non mitoyennes avec de beaux jardins.
Livraison rentrée 2027, Normes RE2020, Frais de notaire réduits.
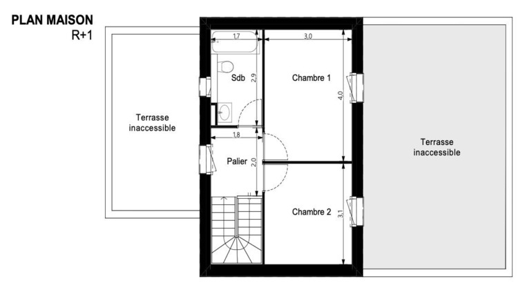
Belle Maison contemporaine de 98,66m2 exposée sud ouest sur terrain de 555m2 comprenant :
- Au rez de chaussée : Séjour 35m2, Chambre 12m2, salle d'eau, wc séparés, cellier, entrée, placards, terrasse, garage, jardin
- A l'étage : Deux chambres, mezzanine, salle de bains, wc séparés.
Pompe à Chaleur, Carrelage grand format, menuiseries/porte de garage électriques.
Possibilité Personnalisation de plans.
Nous Consulter.
Non soumis au DPE. Les informations sur les risques auxquels ce bien est exposé sont disponibles sur le site Géorisques : georisques.gouv.fr.
Votre conseiller MON BIEN A LA MER : Gérant - .fr MON BIEN A LA MER
Carte T CPI 2201 2018 000 025 040
RCP ACM IARD B1 7025278





