Vente Maison 35210, COMBOURTILLE france 520 000 €
Descriptif du bien
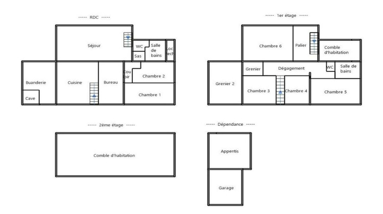
Située à Combourtillé (35210), cette propriété offre un cadre de vie paisible dans un village permettant de profiter du calme et de la sérénité environnante. À l'extérieur, cette demeure présente de nombreux aménagements appréciables tels qu'une terrasse pour profiter des beaux jours, un jardin, une cour spacieuse pour des moments conviviaux en famille ou entre amis. Le stationnement est assuré avec une place de parking extérieure et un garage pour abriter les véhicules. À l'intérieur, la maison de 185 m² propose un agencement de 8 pièces incluant 6 chambres, 2 toilettes, 1 salle de bain et une salle d'eau. La propriété comprend une longère en pierre, deux bâtiments en pierre à rénover un de 125m2 avec un grenier en dessus et l'autre de 150 m2 , deux hangars de 130 m2 et 180 m2, un garage, un puits. Les menuiseries en double vitrage, baies vitrées et Velux offrent luminosité et confort, tandis que la structure en moellon de pierre et la toiture en ardoise confèrent un cachet traditionnel à cette résidence d'exception. Assainissement tout à l'égout Les informations sur les risques auxquels ce bien est exposé sont disponibles sur le site Géorisques : www.georisques.gouv.fr Prix de vente honoraires d'agence inclus : 520 000 € Prix de vente hors honoraires d'agence : 500 000 € Honoraires charge acquéreur : 20 000 € soit 4 % TTC de la valeur du bien hors honoraires Contactez votre consultant megAgence : Bertrand THOMAS, Tél. : 06 88 89 94 22, E-mail : bertrand.thomas@megagence.com - EI - Agent commercial immatriculé au RSAC de RENNES sous le numéro 839 293 958
- Type de bien : Maison
- DPE : C - 91 à 150 kWh/².an
- GES : A -< 6 kg eq CO2/².an
- Surface : 185 m²
- Localisation : France - Bretagne - Ile et Vilaine
- Ville : COMBOURTILLE
- Code postal : 35210
- Annonce créée le 07/03/2026





