Vente Maison 74920, Combloux france 2 090 000 €
Descriptif du bien
POURQUOI PAS se réveiller chaque matin face à cette vue imprenable sur la chaîne du Mont-Blanc, en investissant dans un magnifique chalet à la montagne ?
Ce chalet vendu clés en main, est situé à Combloux, une station familiale surnommée 'la Perle du Mont-Blanc', qui jouxte la station de Megève.
Surface Carrez de 242 m² pour une surface utile totale de 317 m².
5 chambres et 4 salles de bains.
Disposition :
Niveau 0 : 1 garage fermé 2 voitures, 1 entrée, 1 ski-room, 1 buanderie, 1 salle de sport, 1 Chambres, 1 salle de bains, et 1 WC indépendant, 1 jacuzzi à l'extérieur
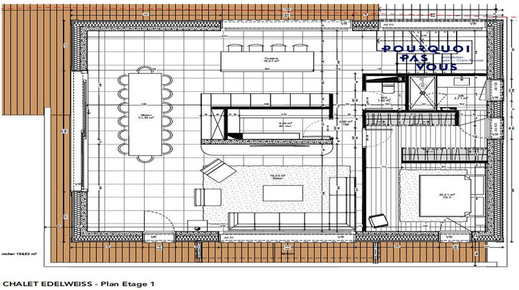
Niveau 1 : 1 séjour, 1 salle à manger, 1 cuisine ouverte, 1 cellier, 1 chambre Master avec dressing, 1 salle de bains, 1 WC indépendant, balcons + terrasse
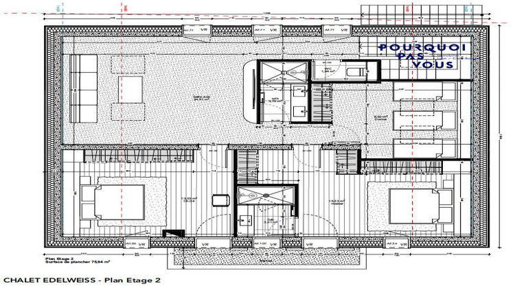
Niveau 2 : 1 salon TV cinéma, 3 chambres, 2 salles de bains, 1 WC
Les +
- Chalet clés en main disponible fin 2026
- Construction haut de gamme par un constructeur du secteur
- Vue panoramique sur le Mont-Blanc, la chaîne des Fiz et des Aravis
- Exposition plein sud
- Dans le village familial et très prisé de Combloux
- A proximité immédiate de Megève
- Idéalement situé à 2h de Lyon
Un chalet prêt à vivre, lumineux, chaleureux et fonctionnel, où vous aurez plaisir à passer une partie de votre temps libre en famille ou entre amis.
Idéal également à la location pour un complément de revenus.
Alors ... POURQUOI PAS VOUS ?
Contactez-moi pour en savoir plus et organiser une visite !
Eve 06 80 61 12 86
Instagram @eve_pourquoipasvous
Honoraires à la charge du vendeur. Non soumis au DPE. Les informations sur les risques auxquels ce bien est exposé sont disponibles sur le site Géorisques : georisques.gouv.fr.
Votre conseiller Pourquoi Pas Vous Immobilier : Eve CHALLETON
Agent commercial (Entreprise individuelle).
Visite virtuelle disponible sur le compte INSTAGRAM @pourquoi_pas_vous_immo
- Type de bien : Maison
- Surface : 242 m²
- Localisation : France - Auvergne-Rhône-Alpes - Savoie (Haute)
- Ville : Combloux
- Code postal : 74920
- Annonce créée le 27/03/2026





