Vente Maison 13220, CHATEAUNEUF-LES-MARTIGUES france 254 000 €
Descriptif du bien
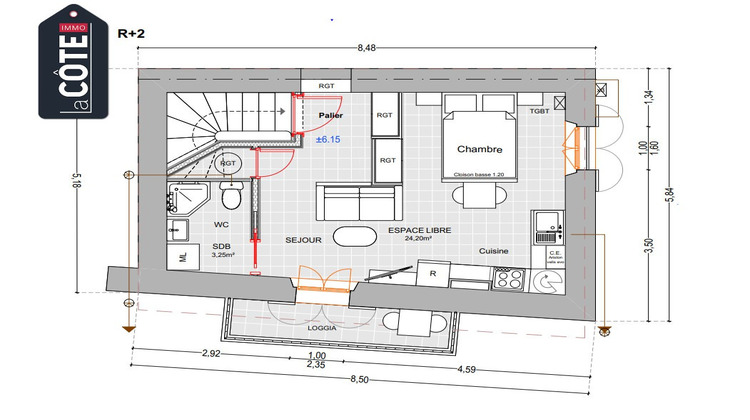
AU 04.42.30.19.86 TAPEZ 2 POUR CONTACTER L'AGENCE SUD ETANG DE BERRE Votre agence La Côte Immo vous propose à la vente cette maison sur 3 niveaux de 90 m² environ sur une parcelle de 120 m² au fond d'une impasse, au calme, sur le secteur de Châteauneuf les Martigues. Pour UN PROJET DE RENOVATION avec déclarations purgées de tous recours, venez découvrir cette charmante bâtisse pouvant être transformée en 3 habitations bien distinctes. Sur le projet vous retrouverez : - Au rez-de-chaussée, un premier niveau pouvant être transformé en studio de 28m² avec une place de parking privative et un extérieur. - Au 1er étage, un second studio de 27m² avec une place de parking et une terrasse. - Au 2ème et dernier étage, un dernier studio de 34m² avec place privative et une terrasse. Les 2 étages sont communiquants par une cage d'escalier déja placée. Les travaux seront évidemment à la charge de l'acquéreur à l'exception des VRD déja tirés. Contactez nous à l'agence pour plus d'informations sur le secteur et davantage de plans du projet Prix : 254 000 euros FRAIS D'AGENCE INCLUS Honoraires charge vendeur La Côte Immo Sud Etang de Berre SIREN 893758748 Tel : 04.42.30.19.86 Mail : contact@lacote-immo.com Copropriété de 2 lots (Pas de procédure en cours).
- Type de bien : Maison
- DPE : D - 151 à 230 kWh/².an
- GES : B - 6 à 10 kg eq CO2/².an
- Surface : 90 m²
- Localisation : France - provence-alpes-cote-d-azur - Bouche-du-Rhone
- Ville : CHATEAUNEUF-LES-MARTIGUES
- Code postal : 13220
- Annonce créée le 24/02/2026



