Vente Maison 69260, Charbonnières-les-Bains france 594 000 €
Descriptif du bien
Maison individuelle neuve T5 avec jardin et garage à vendre à Charbonnières-les-Bains, (69260), construction en cours.
Villa contemporaine de 112 m² habitables, sur 2 niveaux, offrant un excellent niveau de confort et un design moderne dans un quartier résidentiel recherché de l'ouest lyonnais.
Construction en cours d'achèvement, idéale pour profiter d'un bien neuf sans les contraintes d'un chantier à gérer, dans une petite rue calme et peu passante.
Pièces de vie et agencement :
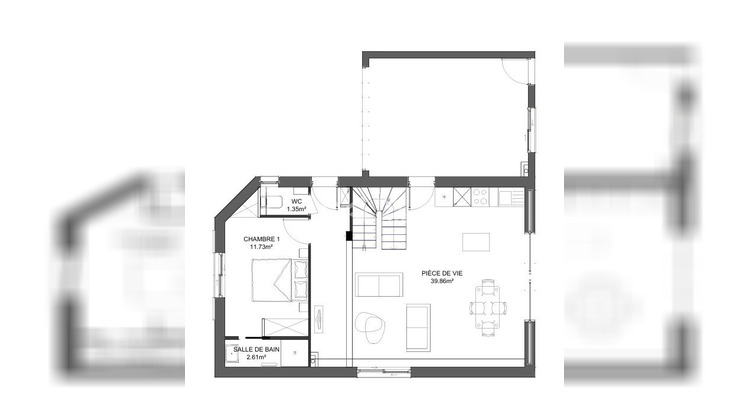
Grande pièce de vie d'environ 40 m², lumineuse, triple exposition, avec lumière traversante.
Large baie vitrée donnant directement sur le jardin, offrant une belle ouverture sur l'extérieur et un espace convivial pour la famille et les amis.
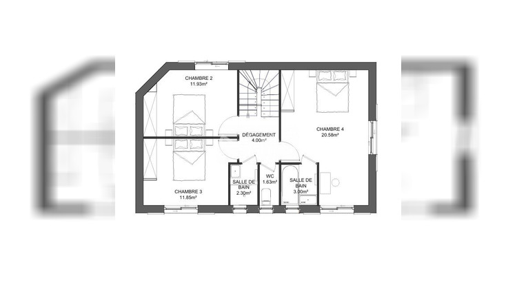
4 chambres, dont 2 chambres avec salle d'eau privative équipées de douche italienne entièrement carrelée.
À l'étage, une 3? salle d'eau indépendante, ainsi que 2 WC indépendants (un au RDC et un à l'étage) pour un confort optimal au quotidien. Prestations techniques et confort.
Menuiseries extérieures en aluminium teinté noir, équipées de double vitrage isolant et phonique pour plus de confort thermique et acoustique.
Logement pré équipé pour la réception de la fibre, idéal pour le télétravail ou les usages numériques intensifs.
Sols des chambres en parquet chêne, apportant chaleur et élégance à l'espace nuit.
Chauffage individuel assuré par des radiateurs à fluide caloporteur, permettant une chaleur douce et homogène.
Chauffage des salles de bains assuré par des sèche serviettes, alliant confort et praticité.
Salles de bain équipées de meubles vasques aux lignes contemporaines, offrant rangements et esthétisme.
Volets BSO (Brise Soleil Orientable) permettant d'optimiser l'isolation thermique et le confort intérieur en été comme en hiver, tout en réduisant sensiblement la consommation énergétique.
Garage, stationnement et extérieurs :
Garage de 21 m² avec accès direct à la pièce principale, très pratique pour rentrer avec les courses ou en cas de mauvais temps.
Une place de parking supplémentaire devant le garage pour un second véhicule ou pour les visiteurs.
Jardin privatif, idéal pour profiter des beaux jours, des repas en extérieur ou d'un espace de jeu pour les enfants.
Situation et transports :
Petite rue au calme, quartier résidentiel, à proximité d'un grand axe desservi par les transports TCL.
Transports de proximité : plusieurs arrêts de bus à environ 5 minutes à pied et à quelques minutes du Campus Région du Numérique.
Gare SNCF et Casino de Charbonnières-les-Bains à environ 20 minutes à pied, mairie et centre-ville à environ 12 minutes à pied.
Accès routiers rapides permettant de rejoindre facilement Lyon et les communes voisines de l'ouest lyonnais.
Prix de vente 594 000 frais agence inclus. Honoraire charge acquéreur.
Pour visiter sans tarder cette jolie villa contemporaine, contactez votre conseillère en immobilier Fabienne ISTACE au 0668196775 Agence Castel Immobilier, Réseau We Invest.
Honoraires inclus de 4.17% TTC à la charge de l'acquéreur. Prix hors honoraires 570 240 . Dans une copropriété de 10 lots. Aucune procédure n'est en cours. Non soumis au DPE. Les informations sur les risques auxquels ce bien est exposé sont disponibles sur le site Géorisques : georisques.gouv.fr.
Votre conseiller Castel immobilier Agnin : Fabienne Istace
Agent commercial (Entreprise individuelle)
- Type de bien : Maison
- Surface : 112 m²
- Localisation : France - Auvergne-Rhône-Alpes - Rhône
- Ville : Charbonnières-les-Bains
- Code postal : 69260
- Annonce créée le 30/01/2026





