Vente Maison 94500, Champigny-sur-Marne france 219 000 €
Descriptif du bien
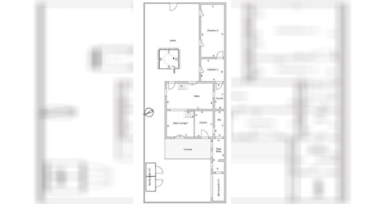
La maison comprend un double séjour, comble aménagé en chambre, cuisine ouverte, salle de bains, toilettes, garage aménagé en chambre, trois débarras à l'arrière de la maison et une cour privative non loin de la RN4.
Concernant le quartier, la maison est situé la limite Champigny sur Marne et Chenneviéres Sur Marne, École maternelle, primaire, collège et lycée sont à moins de 7 minutes à pied, plusieurs centre commerciaux et pharmacie, Boulangerie également, centre de santé, postes. plusieurs stations services en carburant et plusieurs en bornes de recharge électriques.
Arrêt de bus 208A, 208B, 308 et le 7.
Dix minutes en voiture pour les gares de Champigny et Villiers sur Marne.
Villiers-sur-Marne Le Plessis Trévise
Honoraires à la charge du vendeur. Classe énergie F, Classe climat F Logement à consommation énergétique excessive. Montant moyen estimé des dépenses annuelles d'énergie pour un usage standard, établi à partir des prix de l'énergie de l'année 2021 : entre 1510.00 et 2080.00 . Les informations sur les risques auxquels ce bien est exposé sont disponibles sur le site Géorisques : georisques.gouv.fr.
Votre conseiller COSTIER IMMOBILIER : Carlos RAMOS
Agent commercial (Entreprise individuelle)
RSAC 340186998 RSAC Créteil
RCP RCACO-25-031928 Galian
- Type de bien : Maison
- DPE : F - 331 à 450 kWh/².an
- GES : F - 56 à 80 kg eq CO2/².an
- Surface : 66 m²
- Localisation : France - ile-de-france - Val de Marne
- Ville : Champigny-sur-Marne
- Code postal : 94500
- Annonce mise à jour le 28/11/2025





