Vente Maison 35510, CESSON-SEVIGNE france 169 900 €
Descriptif du bien
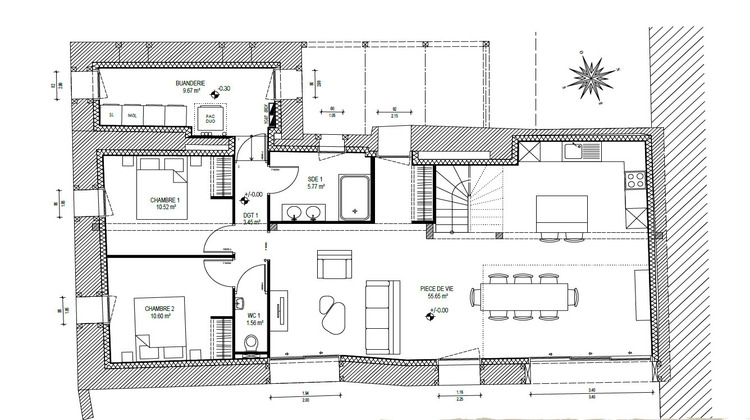
En exclusivité à CESSON SEVIGNE route de Fougères en direction de Thorigné Fouillard, grange à rénover composée au RDC d'une grande pièce principale avec une belle hauteur et grenier au dessus. Cellier sur l'arrière et dépendance non attenante à usage de garage ou stockage. Terrain de 1672 m² borné, viabilisation faite, réseau en attente devant la maison. Prévoir rénovation complète avec une surface potentielle de 170 à 180m² habitables. Projet de rénovation pour illustration (bien vendu libre) pour une surface de 137m² avec grenier et vide sur séjour. Détails du projet sur demande, le permis est prêt à être déposé. Les informations sur les risques auxquels ce bien est exposé sont disponibles sur le site Géorisques : www. georisques. gouv. fr (4.23 % honoraires TTC à la charge de l'acquéreur.)
- Type de bien : Maison
- Surface : 200 m²
- Localisation : France - Bretagne - Ile et Vilaine
- Ville : CESSON-SEVIGNE
- Code postal : 35510
- Annonce mise à jour le 20/01/2026









